Kauf - Wohnung

Renditestarke, möblierte luxus Apartmentwohnungen in Pforzheim

                                 

75172 Pforzheim

799.000 €

Objekt-Nr: KA-IF0165

Eckdaten

Kauf - Wohnung

Angebotsart

Etagenwohnung

Immobilientyp

75172 Pforzheim

Adresse

1980

Baujahr

2020

Letzte Modernisierung / Sanierung

471,00 €

Hausgeld

nach Vereinbarung

Verfügbar ab

Vollständig Renoviert

Objektzustand

Gehoben

Qualität der Ausstattung

Beschreibung

Luxus 7-Apartmentwohnung in gepflegtem 5‑Parteienhaus – ideal für Eigennutzung oder Kapitalanleger.

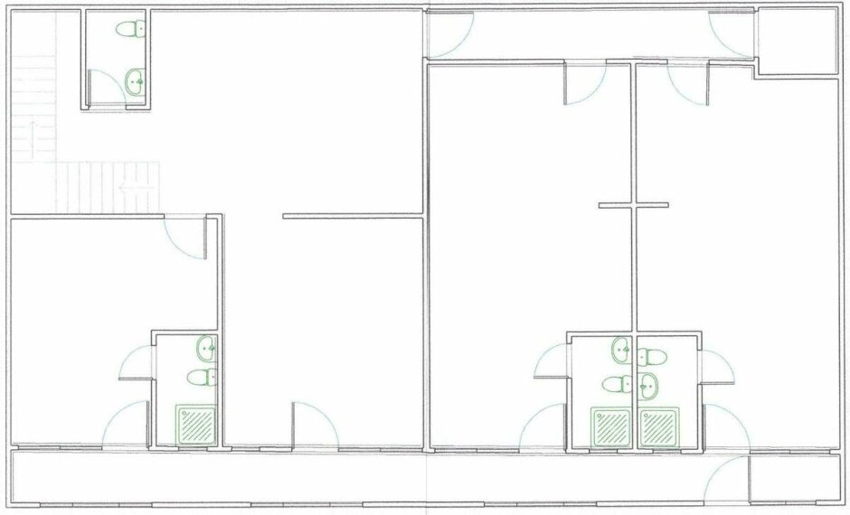
Wir freuen uns, Ihnen eine attraktive 7-Apartmentwohnung in einem ansprechenden 5-Parteienhaus anzubieten. Mit einem separaten Eingang sorgt diese Wohnung für Privatsphäre und Komfort. Das Gebäude, das 1980 erbaut wurde, wurde kontinuierlich modernisiert und präsentiert sich heute in einem hervorragenden Zustand. Die Gesamtwohnfläche beläuft sich auf ca. 247,55 m² und bietet einzigartiges Potenzial für verschiedene Nutzungsmöglichkeiten.
Raumaufteilung im Detail:

Erdgeschoss: 3 Apartments (ca. 79 m² Gesamtfläche)
- Apartment/Zimmer 1: ca. 22 m²
- Apartment/Zimmer 2: ca. 20 m²
- Apartment/Zimmer 3: ca. 23 m²
- Loggia/Balkon: ca. 4,98 m²
- Flur/Garderobe: ca. 9,96 m²

Untergeschoss: 3 Apartments, Küche und großzügiges Wohnzimmer
- Apartment/Zimmer 4: ca. 20 m²
- Apartment/Zimmer 5: ca. 35 m²
- Apartment/Zimmer 6: ca. 33 m²
- Küche: ca. 22,98 m²
- Wohnzimmer: ca. 22,23 m²
- Gäste-WC: ca. 2,87 m²
- Loggia/Balkon: ca. 10,48 m²
- Treppenhaus: ca. 10,5 m²
- Flur: ca. 9,78 m²

In den letzten 15 Jahren wurden umfassende Modernisierungen vorgenommen, die sowohl die Energieeffizienz als auch den Wohnkomfort des gesamten Gebäudes deutlich verbessert haben:
- 2009: Energetische Isolierung des gesamten Gebäudes.
- 2014: Abdichtung, Isolierung und Steinverkleidung im Erdgeschoss-Parkbereich.
- 2021: Dachsanierung mit Dachdämmung und Austausch der Dachfläche.

Diese durchdachten Maßnahmen haben die Apartmentwohnung in einen erstklassigen Zustand versetzt, was sie sowohl für eine Großfamilie als auch als Kapitalanlage besonders attraktiv macht.

Die vielseitige Nutzung der Wohnung ist ein weiteres Highlight: Sie eignet sich hervorragend als Studentenwohnung, für betreutes Wohnen oder als Ferienapartments. Dank der fortlaufenden Modernisierungen und der optimalen Raumaufteilung sind den Nutzungsmöglichkeiten kaum Grenzen gesetzt.

Der Energieausweis befindet sich derzeit in der Bearbeitung und wird Ihnen bei der Besichtigung vorgelegt.

Nutzen Sie die Gelegenheit, in eine wertstabile Immobilie zu investieren oder Ihr neues Zuhause zu gestalten. Kontaktieren Sie uns für weitere Informationen oder zur Vereinbarung eines Besichtigungstermins. Wir freuen uns auf Ihre Anfrage!

Fläche

ca. 247 m²

Wohnfläche

7

Zimmer

6

Anzahl Schlafzimmer

6

Anzahl Badezimmer

EG

Etage

2

Etagenzahl insgesamt

Preis

Gesamtkosten

883.454 €


Kaufpreis

799.000 €

Grunderwerbsteuer

39.950 €
5,0 %

Maklerprovision (inkl. 19 % MwSt.)

28.524 €
3,57 % *

Notarkosten

11.985 €
1,5 %

Grundbucheintrag

3.995 €
0,5 %

* 3,57 % Käuferprovision inkl. 19 % MwSt.
Vertragsgrundlage unserer Leistung sind unsere Allgemeinen Geschäftsbedingungen.

Dies ist der aktuelle Angebotskaufpreis. Wir weisen darauf hin, dass dieser Angebotskaufpreis fallen oder bei erheblicher Nachfrage nach Objekten dieser Art auch steigen kann.

Ausstattung

Balkon
Einbauküche
Gäste-WC
Bodenbelag: Fliesen, Laminat

•Jedes Zimmer-Apartment hat einen eigenen Kalt-Warmwasserzähler
•Jedes Zimmer sowie Küche und Wohnzimmer haben eine Video-Sprechanlage mit Display, die auch zwischen Zimmern kommuniziert (Smart-Home Technologie).
•Alle Zimmer-Apartment sind mit hochwertigen Möbeln ausgestattet: Kleiderschrank, Tisch, Stühle, Kücheneinrichtung (teils).
•Alle Betten im Zimmer sind orthopädische Betten mit einer elektrischen Steuerung.
•Jedes Zimmer-Apartment ist mit einem modernen Bad mit Duschkabine, Waschbecken mit hochwertigen Armaturen, WC ausgestattet.
•Jedes Zimmer (Ausnahme Zimmer1) sowie Wohnzimmer haben einen Zugang zur verglaster großen Loggia/Balkon.
•Jedes Zimmer-Apartment sowie die ganze Wohnung ist mit einem durchdachten Lüftungssystem ausgestattet.
•Jedes Zimmer hat eigene Leitungen für Elektro- und Kommunikationskabel sowie Wasser-, Abwasser
•Im Waschraum stehen zwei Waschmaschinen und ein Trockner
•Das Untergeschoss hat eine Bodenheizung und auch noch Heizkörper. Auf Wunsch kann zwischen Bodenheizung und Heizkörper umgeschaltet werden.
•Technikraum mit Gastherme für Heizung und Warmwassersteuerung
•Gäste-WC im Untergeschoss mit Licht Bewegungsmelder
•Im Untergeschoss gibt es ein Serverraum mit Tresor.
und noch viel mehr.

Weitere Immobilien

850.000 €
529 m²
Pforzheim
252.000 €
2,5 Zimmer | 69 m²
Keltern, Dietlingen
170.000 €
490 m²
Keltern / Niebelsbach
325.000 €
8 Zimmer | 140 m²
Mühlacker-Lienzingen
875.000 €
8 Zimmer | 310 m²
Eberdingen
183.000 €
3 Zimmer | 63 m²
Baden-Württemberg - Oberderdingen
617.000 €
5 Zimmer | 115 m²
Ettlingen-Oberweier
347.000 €
3 Zimmer | 72 m²
Weil der Stadt
379.000 €
14 Zimmer | 328 m²
Gernsbach / Obertsrot
212.000 €
2 Zimmer | 58 m²
Eggenstein-Leopoldshafen
379.000 €
12,5 Zimmer | 265 m²
Enzklösterle

Sonstiges

Bitte beachten Sie, dass nur ein VOLLSTÄNDIG AUSGEFÜLLTES Kontaktformular von uns bearbeitet werden kann.

Frau Irina Fischer
Insterburgerstraße 23b, 76139 Karlsruhe
Tel.: +49 177 2271069
Email: i.fischer@iad-immobilien.de
Aufsichtsbehörde nach § 34 c Gewerbeordnung
IHK Karlsruhe, Postfach 34 40, 76020 Karlsruhe Lammstraße 13-17, 76133 Karlsruhe
Lizenzpartner der IAD Immobilien Agentur Deutschland GmbH

Lage

Das Haus befindet sich in einem ruhigen Wohngebiet, das von Grünflächen und kleinen Parks umgeben ist. Die Umgebung bietet eine angenehme und familiäre Atmosphäre.
In unmittelbarer Nähe gibt es verschiedene Einkaufsmöglichkeiten. Supermärkte, Lebensmittelgeschäfte und lokale Geschäfte sind bequem zu Fuß oder mit dem Fahrrad erreichbar. Die Bewohner haben daher einen einfachen Zugang zu den notwendigen Versorgungsgütern des täglichen Bedarfs.
Der Stadtteil ist gut an das Verkehrsnetz angebunden. Bushaltestellen befinden sich in der Nähe, was den Zugang zum öffentlichen Nahverkehr erleichtert. Die Stadt Pforzheim verfügt auch über ein gut ausgebautes Straßennetz, was den Anwohnern eine gute Anbindung an die umliegenden Städte und Autobahnen ermöglicht.
Für Familien mit schulpflichtigen Kindern bietet die Umgebung verschiedene Schulen. Grundschulen, weiterführende Schulen und möglicherweise auch Bildungseinrichtungen für höhere Abschlüsse sind in der Nähe vorhanden. Dies ermöglicht eine bequeme Erreichbarkeit für Schülerinnen und Schüler.
Für die Betreuung der jüngsten Bewohner gibt es in der Umgebung Kindergärten.
Zusammenfassend bietet dieses Haus eine Wohnlage, die sowohl familienfreundlich als auch gut an die Infrastruktur der Stadt angebunden ist. Die Kombination aus Einkaufsmöglichkeiten, Verkehrsverbindungen, Schulen und Kindergärten macht diese Gegend zu einem attraktiven Wohnort.

Karte

75172 Pforzheim

Möchten Sie ein Exposé anfordern? Nutzen Sie dazu unser praktisches Online-Formular.

Zinsvergleich

ING-DiBa AG
ING-DiBa AG

Monatliche Rate : 2.782,52 €

Summe : 559.300,00 €

Effektivzins

4,07 %

Zins : 3,97 %

Zinsbindung : 10 Jahr(e)

Restschuld nach Zinsbindungsende : 422.255,14 €

ING-DiBa AG
ING-DiBa AG

Monatliche Rate : 2.735,91 €

Summe : 559.300,00 €

Effektivzins

3,97 %

Zins : 3,87 %

Zinsbindung : 10 Jahr(e)

Restschuld nach Zinsbindungsende : 422.975,29 €

Volksbank Düsseldorf Neuss W
Volksbank Düsseldorf Neuss W

Monatliche Rate : 3.024,88 €

Summe : 559.300,00 €

Effektivzins

4,60 %

Zins : 4,49 %

Zinsbindung : 10 Jahr(e)

Restschuld nach Zinsbindungsende : 418.433,14 €

AXA Konzern AG und deren darlehensgebenden Gesellschaften
AXA Konzern AG und deren darlehensgebenden Gesellschaften

Monatliche Rate : 2.721,93 €

Summe : 559.300,00 €

Effektivzins

3,94 %

Zins : 3,84 %

Zinsbindung : 10 Jahr(e)

Restschuld nach Zinsbindungsende : 423.189,94 €

Münchener Hypothekenbank eG
Münchener Hypothekenbank eG

Monatliche Rate : 3.113,44 €

Summe : 559.300,00 €

Effektivzins

4,80 %

Zins : 4,68 %

Zinsbindung : 10 Jahr(e)

Restschuld nach Zinsbindungsende : 417.001,86 €

Eigenkapital 239.700 €; Tilgungsrate 1,00 %

Rechtliches

Die in diesem Exposé enthaltenen Informationen dürfen wir Sie bitten, vertraulich zu behandeln. Eine Weitergabe an Dritte ist unzulässig. Die Angaben in diesem Exposé beruhen auf den uns erteilten Informationen. Eine Haftung für die Richtigkeit bzw. Vollständigkeit können wir jedoch nicht übernehmen, dies gilt auch für die Beschaffenheit und Größe von Flächenangaben. Im Falle von eigenen Fehlern haften wir nur für Vorsatz und grobe Fahrlässigkeit. Im Übrigen gelten unsere allgemeinen Geschäftsbedingungen. Im Hinblick auf die Kompliziertheit der Steuergesetzgebung bitten wir Sie, die steuerlichen Auswirkungen Ihres Kaufes in jedem Falle durch Ihren steuerlichen Berater überprüfen zu lassen.

Rechtshinweis
Da wir Objektangaben nicht selbst ermitteln, übernehmen wir hierfür keine Gewähr. Dieses Exposé ist nur für Sie persönlich bestimmt. Eine Weitergabe an Dritte ist an unsere ausdrückliche Zustimmung gebunden und unterbindet nicht unseren Provisionsanspruch bei Zustandekommen eines Vertrages. Alle Gespräche sind über unser Büro zu führen. Bei Zuwiderhandlung behalten wir uns Schadenersatz bis zur Höhe der Provisionsansprüche ausdrücklich vor. Zwischenverkauf ist nicht ausgeschlossen.

Provision
Die Provision errechnet sich aus dem Kaufpreis. Für ein Exposé und weitere Informationen zum Objekt sowie einen Besichtigungstermin füllen Sie bitte die nachfolgenden Angaben im Kontaktformular aus:
- vollständiger Name/Anschrift,
- E-Mail-Adresse,
- Telefon/Mobilnummer.

Anmerkung
Alle Angaben stammen vom Eigentümer. Für die Richtigkeit übernehmen wir keine Haftung. Bitte bedenken Sie, dass auch die beste Beschreibung keinen Besichtigungstermin ersetzen kann. Wir stehen Ihnen gerne für Fragen zur Verfügung.

Sonstiges
Sehr geehrte Interessentin, sehr geehrter Interessent, sollten Sie eine Anfrage zu diesem Objekt an uns senden, beauftragen Sie uns für Sie tätig zu werden. Wir wollen Ihre Anfrage und Ihr Anliegen umgehend beantworten und wenn Sie wünschen auch kurzfristig einen Besichtigungstermin vereinbaren. Wir weisen darauf hin, dass gemäß Fernabsatzgesetz hiermit ein Vertragsverhältnis nachgewiesen werden kann, und dass bei Vertragsabschlüssen von Kaufverträgen die im Exposé ausgewiesene Courtage zu zahlen ist.

IAD Immobilien Agentur Deutschland GmbH


Copyright © expowand.de

IAD Immobilien Agentur Deutschland GmbH

Made with by expowand

Anfrage stellen