Kauf - Haus

Neubau Haus in Reichenberg

                                 

01468 Moritzburg

541.500 €

Objekt-Nr: C-PS0044

Eckdaten

Kauf - Haus

Angebotsart

Einfamilienhaus

Immobilientyp

01468 Moritzburg

Adresse

2026

Baujahr

Haus in Planung (projektiert)

Bauphase

2026

Verfügbar ab

Nach Vereinbarung

Objektzustand

Gehoben

Qualität der Ausstattung

Garagen/Stellplätze

Art: Carport

Anzahl Stellplätze: 1

Art: Außenstellplatz

Anzahl Stellplätze: 1

Beschreibung

Geplantes Einfamilienhaus :
Dieses Haus wird nach Ihren individuellen Wünschen geplant und ausgestattet!
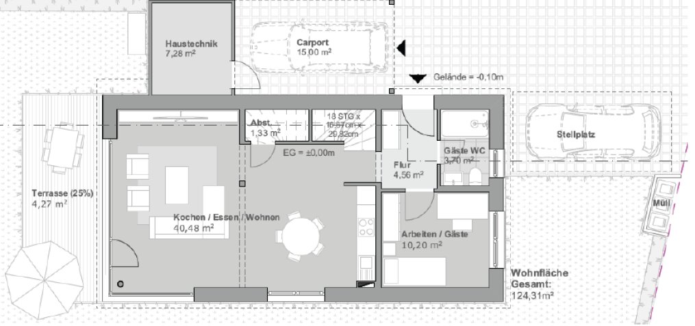
Das Stadthaus lädt mit einer kompakten Diele zum Eintreten ein. Von hier aus gelangen Sie über unmittelbar in den offenen & großzügigen Wohn-/Essbereich mit angeschlossener Küche. Hier ist Platz für das tägliche Leben! Komfortable Fensterelemente bringen Helligkeit und Licht in den über 40 m² großen Raum. Abgerundet wird das Erdgeschoss von einem praktischen Arbeits- und Gästezimmer als auch dem Gäste-WC. Im Obergeschoss überzeugen ein Flur, zwei Kinderzimmer, ein geräumiges Elternschlafzimmer und ein charmantes Familienbad.

Der Kunde/Käufer entscheidet in welchem Umfang wir SIE zum Ziel des Eigenheims begleiten.

Fläche

ca. 124 m²

Wohnfläche

ca. 434 m²

Grundstücks­fläche

ca. 22 m²

Nutzfläche

5

Zimmer

4

Anzahl Schlafzimmer

1

Anzahl Badezimmer

2

Etagenzahl insgesamt

Preis

Gesamtkosten

601.443 €


Kaufpreis

541.500 €

Grunderwerbsteuer

29.782 €
5,5 %

Maklerprovision (inkl. 19 % MwSt.)

19.331 €
3,57 % *

Notarkosten

8.123 €
1,5 %

Grundbucheintrag

2.708 €
0,5 %

* 3,57 % Käuferprovision inkl. 19 % MwSt.
Vertragsgrundlage unserer Leistung sind unsere Allgemeinen Geschäftsbedingungen.

Dies ist der aktuelle Angebotskaufpreis. Wir weisen darauf hin, dass dieser Angebotskaufpreis fallen oder bei erheblicher Nachfrage nach Objekten dieser Art auch steigen kann.

Ausstattung

Terrasse
Einbauküche
Gäste-WC

Herrliches Baugrundstück inkl. Neubau eines 2-geschossigen EFH in 01468 Moritzburg, OT Reichenberg.

- Schlüssel- und bezugsfertig
- barrierearm
- inkl. Luft-Wärmepumpe
- PV-Anlage
- EE-Standard KfW 55
- hochwertiger Einbauküche
- Grundstück 434m²
- Wfl 124m²
- Fußbodenheizung
- Fenster mit 3-Scheiben-Wärmeschutzverglasung und Rollläden
- nicht unterkellert
- Haustür mit 3-fach-Sicherheitsverriegelung
- Elektroausstattung inkl. Klingelanlage
- 1 Carport und 1 Außenstellplatz

Weitere Immobilien

228.000 €
3 Zimmer | 51 m²
Dresden - Pieschen
673.205 €
5 Zimmer | 144 m²
Dresden - Strehlen
650.000 €
5 Zimmer | 144 m²
Dresden
249.247 €
5 Zimmer | 160 m²
Lampertswalde
100.000 €
2 Zimmer | 29 m²
Dresden
569.000 €
10 Zimmer | 150 m²
Sachsen - Laußnitz
495.000 €
19 Zimmer | 950 m²
Großröhrsdorf
366.000 €
21 Zimmer | 510 m²
Haselbachtal

Sonstiges

Bitte beachten Sie, dass nur ein VOLLSTÄNDIG AUSGEFÜLLTES Kontaktformular von uns bearbeitet werden kann.

Herr Patrick Schwarz
Dorotheenstr. 70, 09113 Chemnitz
Tel.: +49 172 8495675
Email: p.schwarz@iad-immobilien.de
Aufsichtsbehörde nach § 34 c Gewerbeordnung
IHK für München und Oberbayern, Max-Joseph-Straße 2, 80333 München
Lizenzpartner der IAD Immobilien Agentur Deutschland GmbH

Lage

Das angebotene Baugrundstück befindet sich in attraktiver und ruhiger Wohnlage in Reichenberg, einem Ortsteil der Gemeinde Moritzburg, im Landkreis Meißen.
Reichenberg zählt zu den gefragtesten Wohnlagen im Umland von Dresden und verbindet naturnahes Wohnen mit einer hervorragenden Anbindung an die Landeshauptstadt. Die Dresdner Innenstadt ist in ca. 20–25 Minuten erreichbar.
Die Umgebung ist geprägt von gepflegter Einfamilienhausbebauung, großzügigen Grundstücken und einer idyllischen Landschaft mit Wäldern, Wiesen und Teichanlagen rund um Moritzburg.

Karte

01468 Moritzburg

Möchten Sie ein Exposé anfordern? Nutzen Sie dazu unser praktisches Online-Formular.

Zinsvergleich

ING-DiBa AG
ING-DiBa AG

Monatliche Rate : 1.889,18 €

Summe : 379.100,00 €

Effektivzins

4,08 %

Zins : 3,98 %

Zinsbindung : 10 Jahr(e)

Restschuld nach Zinsbindungsende : 286.161,01 €

ING-DiBa AG
ING-DiBa AG

Monatliche Rate : 1.857,59 €

Summe : 379.100,00 €

Effektivzins

3,98 %

Zins : 3,88 %

Zinsbindung : 10 Jahr(e)

Restschuld nach Zinsbindungsende : 286.648,95 €

Allianz Lebensversicherung AG
Allianz Lebensversicherung AG

Monatliche Rate : 2.024,76 €

Summe : 379.050,00 €

Effektivzins

4,53 %

Zins : 4,41 %

Zinsbindung : 10 Jahr(e)

Restschuld nach Zinsbindungsende : 283.985,66 €

Münchener Hypothekenbank eG
Münchener Hypothekenbank eG

Monatliche Rate : 2.110,05 €

Summe : 379.050,00 €

Effektivzins

4,80 %

Zins : 4,68 %

Zinsbindung : 10 Jahr(e)

Restschuld nach Zinsbindungsende : 282.610,99 €

Hannoversche
Hannoversche

Monatliche Rate : 1.860,50 €

Summe : 379.050,00 €

Effektivzins

3,99 %

Zins : 3,89 %

Zinsbindung : 10 Jahr(e)

Restschuld nach Zinsbindungsende : 286.563,03 €

Eigenkapital 162.450 €; Tilgungsrate 1,00 %

Rechtliches

Die in diesem Exposé enthaltenen Informationen dürfen wir Sie bitten, vertraulich zu behandeln. Eine Weitergabe an Dritte ist unzulässig. Die Angaben in diesem Exposé beruhen auf den uns erteilten Informationen. Eine Haftung für die Richtigkeit bzw. Vollständigkeit können wir jedoch nicht übernehmen, dies gilt auch für die Beschaffenheit und Größe von Flächenangaben. Im Falle von eigenen Fehlern haften wir nur für Vorsatz und grobe Fahrlässigkeit. Im Übrigen gelten unsere allgemeinen Geschäftsbedingungen. Im Hinblick auf die Kompliziertheit der Steuergesetzgebung bitten wir Sie, die steuerlichen Auswirkungen Ihres Kaufes in jedem Falle durch Ihren steuerlichen Berater überprüfen zu lassen.

Rechtshinweis
Da wir Objektangaben nicht selbst ermitteln, übernehmen wir hierfür keine Gewähr. Dieses Exposé ist nur für Sie persönlich bestimmt. Eine Weitergabe an Dritte ist an unsere ausdrückliche Zustimmung gebunden und unterbindet nicht unseren Provisionsanspruch bei Zustandekommen eines Vertrages. Alle Gespräche sind über unser Büro zu führen. Bei Zuwiderhandlung behalten wir uns Schadenersatz bis zur Höhe der Provisionsansprüche ausdrücklich vor. Zwischenverkauf ist nicht ausgeschlossen.

Provision
Die Provision errechnet sich aus dem Kaufpreis. Für ein Exposé und weitere Informationen zum Objekt sowie einen Besichtigungstermin füllen Sie bitte die nachfolgenden Angaben im Kontaktformular aus:
- vollständiger Name/Anschrift,
- E-Mail-Adresse,
- Telefon/Mobilnummer.

Anmerkung
Alle Angaben stammen vom Eigentümer. Für die Richtigkeit übernehmen wir keine Haftung. Bitte bedenken Sie, dass auch die beste Beschreibung keinen Besichtigungstermin ersetzen kann. Wir stehen Ihnen gerne für Fragen zur Verfügung.

Sonstiges
Sehr geehrte Interessentin, sehr geehrter Interessent, sollten Sie eine Anfrage zu diesem Objekt an uns senden, beauftragen Sie uns für Sie tätig zu werden. Wir wollen Ihre Anfrage und Ihr Anliegen umgehend beantworten und wenn Sie wünschen auch kurzfristig einen Besichtigungstermin vereinbaren. Wir weisen darauf hin, dass gemäß Fernabsatzgesetz hiermit ein Vertragsverhältnis nachgewiesen werden kann, und dass bei Vertragsabschlüssen von Kaufverträgen die im Exposé ausgewiesene Courtage zu zahlen ist.

IAD Immobilien Agentur Deutschland GmbH


Copyright © expowand.de

IAD Immobilien Agentur Deutschland GmbH

Made with by expowand

Anfrage stellen