Kauf - Haus

Neuwertiges, großzügiges Reihenendhaus mit Garten

                                 

67105 Schifferstadt

684.000 €

Objekt-Nr: KL-MH3445

Eckdaten

Kauf - Haus

Angebotsart

Reiheneckhaus

Immobilientyp

67105 Schifferstadt

Adresse

2015

Baujahr

Neuwertig

Objektzustand

Gehoben

Qualität der Ausstattung

Garagen/Stellplätze

Art: Außenstellplatz

Anzahl Stellplätze: 3

Beschreibung

Dieses moderne und äußerst großzügige Reihenendhaus überzeugt durch seine durchdachte Raumaufteilung, eine hochwertige Ausstattung sowie ein familienfreundliches Wohnkonzept auf mehreren Ebenen.
Mit ca. 209 m² Wohnfläche bietet die Immobilie ausreichend Platz für Familien, Homeoffice und Gäste und erfüllt hohe Ansprüche an Komfort und Funktionalität.

Erdgeschoss
Der Eingangsbereich empfängt Sie mit einem praktischen Grundriss. Rechter Hand befinden sich ein Gäste-WC sowie zwei separate Abstellräume, die für zusätzlichen Stauraum sorgen.
Herzstück des Hauses ist das großzügige Ess- und Wohnzimmer mit offener Küche.
Große Fensterflächen schaffen eine helle, freundliche Atmosphäre und ermöglichen den direkten Zugang zur Terrasse und in den Garten.
Der gepflegte Garten verfügt über zwei Gerätehäuser und bietet ideale Voraussetzungen für Freizeit, Erholung und Familienleben.

Obergeschoss
Im Obergeschoss befinden sich die privaten Rückzugsräume.
Ein großes Tageslichtbad ist hochwertig ausgestattet mit ebenerdiger Dusche, Badewanne, Bidet, WC und Waschbecken.
Ergänzt wird diese Etage durch ein Kinderzimmer,
ein Büro,
ein Schlafzimmer mit separater Ankleide sowie
einen praktischen Hauswirtschaftsraum.

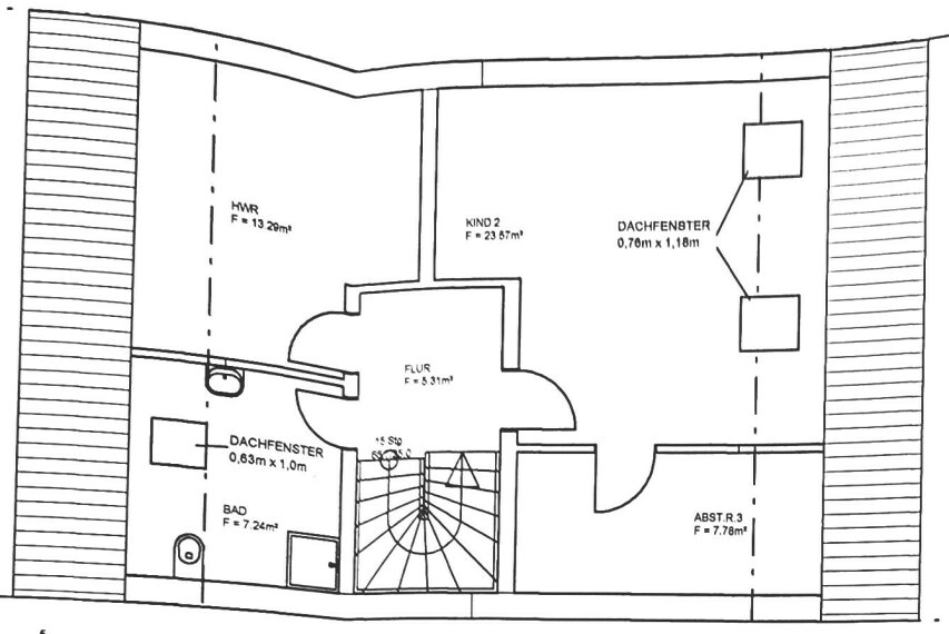
Dachgeschoss
Das Dachgeschoss bietet
ein sehr großes Zimmer mit Ankleide,
ein Gästezimmer sowie
ein modernes Tageslicht-Duschbad mit ebenerdiger Dusche.
Diese Etage eignet sich ideal als Gäste- oder Jugendbereich oder für weitere Homeoffice-Nutzung.

Speicher
Der geräumige Speicher beherbergt die Gasheizung und bietet zusätzlichen Stauraum.

Fläche

ca. 209 m²

Wohnfläche

ca. 256 m²

Grundstücks­fläche

6

Zimmer

5

Anzahl Schlafzimmer

2

Anzahl Badezimmer

3

Etagenzahl insgesamt

Preis

Gesamtkosten

756.298 €


Kaufpreis

684.000 €

Grunderwerbsteuer

34.200 €
5,0 %

Maklerprovision (inkl. 19 % MwSt.)

24.418 €
3,57 % *

Notarkosten

10.260 €
1,5 %

Grundbucheintrag

3.420 €
0,5 %

* 3,57 % Käuferprovision inkl. 19 % MwSt.
Vertragsgrundlage unserer Leistung sind unsere Allgemeinen Geschäftsbedingungen.

Dies ist der aktuelle Angebotskaufpreis. Wir weisen darauf hin, dass dieser Angebotskaufpreis fallen oder bei erheblicher Nachfrage nach Objekten dieser Art auch steigen kann.

Ausstattung

Terrasse
Einbauküche
Gäste-WC
Barrierefrei
Bodenbelag: Fliesen, Laminat

3-fach verglaste Kunststofffenster
Elektrische Rollläden
Fußbodenheizung
Gasheizung
Moderne, offene Küche
Tageslichtbäder mit hochwertiger Sanitärausstattung
3 Außenstellplätze
Terrasse und Garten mit zwei Gerätehäusern

Energie

Energieausweis

Energieausweis liegt für das Gebäude vor

Energieausweis

18.11.2034

Gültig bis

Bedarfsausweis

Energieausweistyp

64,30 kWh/(m²*a)

Endenergiebedarf

B

Energieeffizienzklasse

Gas

Wesentliche Energieträger

2014

Baujahr laut Energieausweis

Fußbodenheizung

Heizungsart

Weitere Immobilien

729.000 €
10 Zimmer | 400 m²
Dannstadt-Schauernheim
530.000 €
7 Zimmer | 282 m²
Ludwigshafen-Ruchheim
640.000 €
4 Zimmer | 128 m²
Ludwigshafen am Rhein
186.000 €
2 Zimmer | 59 m²
Ludwigshafen am Rhein
84.000 €
1 Zimmer | 22 m²
Ludwigshafen am Rhein
76.000 €
1 Zimmer | 22 m²
Ludwigshafen am Rhein
76.000 €
1 Zimmer | 22 m²
Ludwigshafen am Rhein
370.000 €
1 Zimmer | 22 m²
Ludwigshafen am Rhein
82.000 €
1 Zimmer | 22 m²
Ludwigshafen am Rhein
87.000 €
1 Zimmer | 22 m²
Ludwigshafen am Rhein
690.000 €
7 Zimmer | 175 m²
Ludwigshafen am Rhein / Oggersheim
229.000 €
4 Zimmer | 93 m²
Frankenthal (Pfalz)
198.000 €
4 Zimmer | 80 m²
Wachenheim an der Weinstraße
137.000 €
1 Zimmer | 35 m²
Bad Dürkheim
595.000 €
10 Zimmer | 200 m²
Heidelberg-Ziegelhausen
279.000 €
4 Zimmer | 91 m²
Landau in der Pfalz
419.000 €
8 Zimmer | 221 m²
Carlsberg
799.000 €
7 Zimmer | 200 m²
Mülhausen-Rettigheim
810.000 €
6 Zimmer | 173 m²
Bad Schönborn
395.000 €
4 Zimmer | 116 m²
Linkenheim-Hochstetten

Sonstiges

Bitte beachten Sie, dass nur ein VOLLSTÄNDIG AUSGEFÜLLTES Kontaktformular von uns bearbeitet werden kann.

Herr Martin Henzmann
Hauptstr. 33, 66851 Bann
Tel.: +49 177 8877116
Email: m.henzmann@iad-immobilien.de
Aufsichtsbehörde nach § 34 c Gewerbeordnung
Verbandsgemeindeverwaltung Landstuhl Kaiserstr. 49 66849 Landstuhl
Lizenzpartner der IAD Immobilien Agentur Deutschland GmbH

Lage

Schifferstadt verfügt über eine sehr gute städtische Infrastruktur. Einkaufsmöglichkeiten für den täglichen Bedarf, Supermärkte, Bäckereien, Apotheken sowie Ärzte sind in kurzer Zeit erreichbar.
Ebenso stehen Kindergärten, Schulen und weitere Bildungseinrichtungen in ausreichender Zahl zur Verfügung. Freizeit- und Sportangebote, Vereine sowie Grün- und Erholungsflächen runden das Angebot ab.

Die Verkehrsanbindung ist als sehr gut zu bewerten. Schifferstadt liegt verkehrsgünstig im Rhein-Neckar-Raum und bietet eine schnelle Erreichbarkeit der umliegenden Städte wie Ludwigshafen, Mannheim und Speyer.
Sowohl der öffentliche Personennahverkehr als auch die Anbindung an das regionale und überregionale Straßennetz ermöglichen eine flexible Mobilität für Berufspendler und Familien.

Insgesamt zeichnet sich die Lage durch eine gelungene Kombination aus ruhigem Wohnen, guter Erreichbarkeit und einer umfassenden Nahversorgung aus – ein idealer Standort für alle, die stadtnah und dennoch entspannt wohnen möchten.

Karte

67105 Schifferstadt

Möchten Sie ein Exposé anfordern? Nutzen Sie dazu unser praktisches Online-Formular.

Zinsvergleich

ING-DiBa AG
ING-DiBa AG

Monatliche Rate : 2.382,03 €

Summe : 478.800,00 €

Effektivzins

4,07 %

Zins : 3,97 %

Zinsbindung : 10 Jahr(e)

Restschuld nach Zinsbindungsende : 361.480,34 €

ING-DiBa AG
ING-DiBa AG

Monatliche Rate : 2.342,13 €

Summe : 478.800,00 €

Effektivzins

3,97 %

Zins : 3,87 %

Zinsbindung : 10 Jahr(e)

Restschuld nach Zinsbindungsende : 362.096,55 €

Consors Finanz BNP Paribas
Consors Finanz BNP Paribas

Monatliche Rate : 3.188,01 €

Summe : 478.800,00 €

Effektivzins

6,19 %

Zins : 5,99 %

Zinsbindung : 10 Jahr(e)

Restschuld nach Zinsbindungsende : 348.095,29 €

AXA Konzern AG und deren darlehensgebenden Gesellschaften
AXA Konzern AG und deren darlehensgebenden Gesellschaften

Monatliche Rate : 2.469,81 €

Summe : 478.800,00 €

Effektivzins

4,30 %

Zins : 4,19 %

Zinsbindung : 10 Jahr(e)

Restschuld nach Zinsbindungsende : 360.109,92 €

Allianz Lebensversicherung AG
Allianz Lebensversicherung AG

Monatliche Rate : 2.549,61 €

Summe : 478.800,00 €

Effektivzins

4,51 %

Zins : 4,39 %

Zinsbindung : 10 Jahr(e)

Restschuld nach Zinsbindungsende : 358.846,28 €

Eigenkapital 205.200 €; Tilgungsrate 1,00 %

Rechtliches

Die in diesem Exposé enthaltenen Informationen dürfen wir Sie bitten, vertraulich zu behandeln. Eine Weitergabe an Dritte ist unzulässig. Die Angaben in diesem Exposé beruhen auf den uns erteilten Informationen. Eine Haftung für die Richtigkeit bzw. Vollständigkeit können wir jedoch nicht übernehmen, dies gilt auch für die Beschaffenheit und Größe von Flächenangaben. Im Falle von eigenen Fehlern haften wir nur für Vorsatz und grobe Fahrlässigkeit. Im Übrigen gelten unsere allgemeinen Geschäftsbedingungen. Im Hinblick auf die Kompliziertheit der Steuergesetzgebung bitten wir Sie, die steuerlichen Auswirkungen Ihres Kaufes in jedem Falle durch Ihren steuerlichen Berater überprüfen zu lassen.

Rechtshinweis
Da wir Objektangaben nicht selbst ermitteln, übernehmen wir hierfür keine Gewähr. Dieses Exposé ist nur für Sie persönlich bestimmt. Eine Weitergabe an Dritte ist an unsere ausdrückliche Zustimmung gebunden und unterbindet nicht unseren Provisionsanspruch bei Zustandekommen eines Vertrages. Alle Gespräche sind über unser Büro zu führen. Bei Zuwiderhandlung behalten wir uns Schadenersatz bis zur Höhe der Provisionsansprüche ausdrücklich vor. Zwischenverkauf ist nicht ausgeschlossen.

Provision
Die Provision errechnet sich aus dem Kaufpreis. Für ein Exposé und weitere Informationen zum Objekt sowie einen Besichtigungstermin füllen Sie bitte die nachfolgenden Angaben im Kontaktformular aus:
- vollständiger Name/Anschrift,
- E-Mail-Adresse,
- Telefon/Mobilnummer.

Anmerkung
Alle Angaben stammen vom Eigentümer. Für die Richtigkeit übernehmen wir keine Haftung. Bitte bedenken Sie, dass auch die beste Beschreibung keinen Besichtigungstermin ersetzen kann. Wir stehen Ihnen gerne für Fragen zur Verfügung.

Sonstiges
Sehr geehrte Interessentin, sehr geehrter Interessent, sollten Sie eine Anfrage zu diesem Objekt an uns senden, beauftragen Sie uns für Sie tätig zu werden. Wir wollen Ihre Anfrage und Ihr Anliegen umgehend beantworten und wenn Sie wünschen auch kurzfristig einen Besichtigungstermin vereinbaren. Wir weisen darauf hin, dass gemäß Fernabsatzgesetz hiermit ein Vertragsverhältnis nachgewiesen werden kann, und dass bei Vertragsabschlüssen von Kaufverträgen die im Exposé ausgewiesene Courtage zu zahlen ist.

IAD Immobilien Agentur Deutschland GmbH


Copyright © expowand.de

IAD Immobilien Agentur Deutschland GmbH

Made with by expowand

Anfrage stellen