Kauf - Haus

Ehemaliges Wohn- und Geschäftshaus (Bauphase - entkernt ) mit Entwicklungspotential

                                 

07646 Mörsdorf

150.000 €

Objekt-Nr: EF-SS0003

Eckdaten

Kauf - Haus

Angebotsart

Mehrfamilienhaus

Immobilientyp

07646 Mörsdorf

Adresse

1900

Baujahr

Haus im Bau

Bauphase

Renovierungsbedürftig / Sanierungsbedürftig

Objektzustand

Beschreibung

Zum Verkauf steht ein beeindruckendes Wohn- und Geschäftshaus aus der Jahrhundertwende (Baujahr ca. 1900), das mit einem attraktiven Entwicklungspotenzial aufwartet. Mit einer großzügigen Gesamtfläche von etwa 535 m² und einem Grundstück von ca. 544 m² ist dieses vollständig leerstehende Objekt ideal für Investoren, Bauträger oder kreative Handwerker, die auf der Suche nach einem spannenden Projekt sind.

Das viergeschossige Gebäude, bestehend aus einem Keller, Erdgeschoss, Obergeschoss und Dachgeschoss, wurde in mehreren Bauphasen erweitert und weist bereits modernisierte Elemente auf. Die Immobilie bedarf zwar umfassender Sanierungs- und Ausbauarbeiten, doch genau hier liegt die Chance: Sie haben die Möglichkeit, Ihre individuellen Vorstellungen zu verwirklichen und das Objekt nach Ihren Wünschen zu gestalten.

Die Nutzungsmöglichkeiten sind vielfältig. So kann das Gebäude beispielsweise in bis zu fünf separate Wohneinheiten sowie einer attraktiven gewerblichen Fläche, etwa für Gastronomie oder andere Geschäftszwecke, umgestaltet werden.

Ein weiterer Pluspunkt: Das Objekt ist derzeit vertragsfrei, was Ihnen als Käufer maximale Flexibilität und Planungssicherheit bietet.

Bitte beachten Sie, dass kein Energieausweis vorhanden ist, da sich das Gebäude in einem entkernten Zustand befindet.

Nutzen Sie diese einmalige Gelegenheit, um ein Stück Geschichte mit neuem Leben zu erfüllen und ein lukratives Investment zu tätigen!

Fläche

ca. 434 m²

Wohnfläche

ca. 544 m²

Grundstücks­fläche

16

Zimmer

3

Etagenzahl insgesamt

Preis

Gesamtkosten

167.640 €


Kaufpreis

150.000 €

Grunderwerbsteuer

7.500 €
5,0 %

Maklerprovision (inkl. 19 % MwSt.)

7.140 €

Notarkosten

2.250 €
1,5 %

Grundbucheintrag

750 €
0,5 %

* 7.140,00 € Käuferprovision inkl. 19 % MwSt.
Vertragsgrundlage unserer Leistung sind unsere Allgemeinen Geschäftsbedingungen.

Dies ist der aktuelle Angebotskaufpreis. Wir weisen darauf hin, dass dieser Angebotskaufpreis fallen oder bei erheblicher Nachfrage nach Objekten dieser Art auch steigen kann.

Ausstattung

Keller
Bodenbelag: Estrich

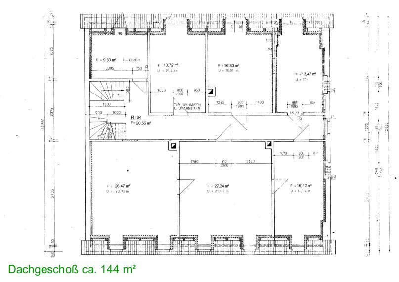
Das Gebäude bietet eine vielseitige Grundstruktur mit insgesamt vier Ebenen: Keller, Erdgeschoss, Obergeschoss und Dachgeschoss. Im Dachgeschoss befindet sich eine großzügige Wohneinheit im Rohbauzustand mit rund 144 m², verteilt auf fünf Wohnräume, Küche, Bad und Flur. Das Obergeschoss umfasst zwei Wohneinheiten – eine kleinere mit zwei Zimmern, Küche, Bad, Flur und einer rund 11,5 m² großen Dachterrasse (ebenfalls im Rohbauzustand), sowie eine weitere Einheit mit drei Zimmern, Küche, Bad und Flur auf etwa 102 m² Wohnfläche.
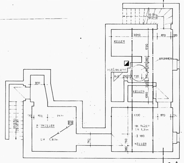
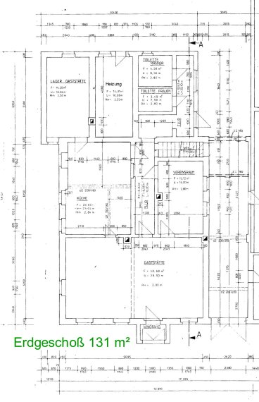
Das Erdgeschoss wurde zuletzt gastronomisch genutzt und verfügt über zwei große Gasträume mit zusammen rund 64 m², eine angeschlossene Küche und Lagerflächen mit rund 41 m², einen zentralen Flurbereich (ca. 18,5 m²) sowie sanitäre Anlagen mit getrennten Toiletten auf rund 8 m². Der großzügige Kellerbereich bietet weitere Lagermöglichkeiten, darunter ein Getränkelager mit direktem Außenzugang, ein zusätzlicher Lagerraum mit einem Grundwasser-Tiefbrunnen sowie ein innenliegender Lagerbereich. Ein separates Treppenhaus verbindet den Keller direkt mit dem früheren Gaststättenbereich.
Die Haustechnik ist zum Teil modernisiert: Die Elektroinstallation wurde 1993 vollständig erneuert. Eine zentrale Gasheizung von Viessmann mit zentraler Warmwasserversorgung für die Gastronomie ist vorhanden, muss aber noch an den Erdgasanschluss angeschlossen und teilweise überarbeitet werden. Boden im EG Estrich, in den OGs Dielen. Fenster und Außentüren im Vorderhaus wurden stilecht als Holzrahmen-Doppelfenster nach historischem Vorbild erneuert. Das Dach des Rückgebäudes wurde 2007 vollständig saniert – inklusive neuer Dachbalken, Dachschalung und Zinkblechverkleidung mit Wärmedämmung. 2015 folgte die Erneuerung des kompletten Dachstuhls des Vorderhauses mit moderner Dacheindeckung und Einbau von zehn Dachflächenfenstern. Sämtliche Hausanschlüsse (Strom, Telekom, Erdgas, Wasser, Abwasser) wurden 2008 im Zuge einer Straßenerneuerung neu verlegt.
Auf dem rückwärtigen Grundstück befinden sich PKW-Stellplätze auf Rasenrastersteinen sowie ein massiver Schuppen mit Garagentor (ca. 20 m²). Die Hoffläche umfasst etwa 210 m² und kann vollständig renaturiert und begrünt werden. Eine zusätzliche kleine Vorgartenfläche von rund 45 m² ist durch Hecken eingefasst.

Energie

Dieses Gebäude unterliegt nicht den GEG-Anforderungen

Energieausweis

Weitere Immobilien

220.000 €
13 Zimmer | 375 m²
Neustadt an der Orla
739.000 €
11 Zimmer | 738 m²
Harth-Pöllnitz OT Niederpöllnitz
450.000 €
8 Zimmer | 226 m²
Gera
64.355 €
2 Zimmer | 43 m²
Gera
120.000 €
11 Zimmer | 320 m²
Langenwetzendorf
125.000 €
12 Zimmer | 700 m²
Langenwetzendorf

Sonstiges

Bitte beachten Sie, dass nur ein VOLLSTÄNDIG AUSGEFÜLLTES Kontaktformular von uns bearbeitet werden kann.

Herr Sven-Günter Schwens
Berliner Str. 123, 99091 Erfurt
Tel.: +49 172 6441023
Email: s.schwens@iad-immobilien.de
Aufsichtsbehörde nach § 34 c Gewerbeordnung
IHK für München und Oberbayern, Max-Joseph-Straße 2, 80333 München
Lizenzpartner der IAD Immobilien Agentur Deutschland GmbH

Lage

Die Immobilie befindet sich in 07646 Mörsdorf, einer kleinen und ruhig gelegenen Gemeinde im Saale-Holzland-Kreis in Thüringen. Mörsdorf liegt eingebettet in eine reizvolle, ländlich geprägte Umgebung mit weitem Blick über Felder und Wälder. Die Gemeinde gehört zur Verwaltungsgemeinschaft Hügelland/Täler und ist ideal für Menschen, die naturnahes Wohnen mit guter Erreichbarkeit der städtischen Infrastruktur kombinieren möchten.
Trotz der ruhigen Lage ist Mörsdorf verkehrstechnisch gut angebunden: Die Autobahnen A4 (Auffahrt Stadtroda) und A9 (Hermsdorf-Kreuz) sind in wenigen Fahrminuten erreichbar. Dadurch sind die Universitätsstadt Jena (ca. 20 Minuten), Gera, Hermsdorf sowie die Landeshauptstadt Erfurt schnell zu erreichen.
In den umliegenden Gemeinden und Städten – insbesondere in Stadtroda, Hermsdorf und Eisenberg – befinden sich alle Einrichtungen des täglichen Bedarfs: Supermärkte, Ärzte, Apotheken, Banken, Schulen und Kindergärten. Mörsdorf selbst bietet durch seine ruhige und naturnahe Lage hohe Lebensqualität, ideal für Familien, Ruhesuchende oder handwerklich ambitionierte Käufer.
Die Umgebung lädt zu vielfältigen Freizeitaktivitäten ein – ob Wandern, Radfahren oder einfach nur das Leben auf dem Land genießen. Die Nähe zur Saale und den waldreichen Höhenzügen des Holzlandes macht Mörsdorf zu einem attraktiven Wohnort mit Zukunftsperspektive.

Karte

07646 Mörsdorf

Möchten Sie ein Exposé anfordern? Nutzen Sie dazu unser praktisches Online-Formular.

Zinsvergleich

ING-DiBa AG
ING-DiBa AG

Monatliche Rate : 541,63 €

Summe : 105.000,00 €

Effektivzins

4,31 %

Zins : 4,19 %

Zinsbindung : 10 Jahr(e)

Restschuld nach Zinsbindungsende : 78.970,74 €

ING-DiBa AG
ING-DiBa AG

Monatliche Rate : 532,88 €

Summe : 105.000,00 €

Effektivzins

4,20 %

Zins : 4,09 %

Zinsbindung : 10 Jahr(e)

Restschuld nach Zinsbindungsende : 79.107,90 €

HypoVereinsbank
HypoVereinsbank

Monatliche Rate : 503,13 €

Summe : 105.000,00 €

Effektivzins

3,85 %

Zins : 3,75 %

Zinsbindung : 10 Jahr(e)

Restschuld nach Zinsbindungsende : 79.567,41 €

Consors Finanz BNP Paribas
Consors Finanz BNP Paribas

Monatliche Rate : 917,88 €

Summe : 105.000,00 €

Effektivzins

7,80 %

Zins : 7,49 %

Zinsbindung : 10 Jahr(e)

Restschuld nach Zinsbindungsende : 58.318,31 €

AXA Konzern AG und deren darlehensgebenden Gesellschaften
AXA Konzern AG und deren darlehensgebenden Gesellschaften

Monatliche Rate : 541,63 €

Summe : 105.000,00 €

Effektivzins

4,31 %

Zins : 4,19 %

Zinsbindung : 10 Jahr(e)

Restschuld nach Zinsbindungsende : 78.970,74 €

Eigenkapital 45.000 €; Tilgungsrate 1,00 %

Rechtliches

Die in diesem Exposé enthaltenen Informationen dürfen wir Sie bitten, vertraulich zu behandeln. Eine Weitergabe an Dritte ist unzulässig. Die Angaben in diesem Exposé beruhen auf den uns erteilten Informationen. Eine Haftung für die Richtigkeit bzw. Vollständigkeit können wir jedoch nicht übernehmen, dies gilt auch für die Beschaffenheit und Größe von Flächenangaben. Im Falle von eigenen Fehlern haften wir nur für Vorsatz und grobe Fahrlässigkeit. Im Übrigen gelten unsere allgemeinen Geschäftsbedingungen. Im Hinblick auf die Kompliziertheit der Steuergesetzgebung bitten wir Sie, die steuerlichen Auswirkungen Ihres Kaufes in jedem Falle durch Ihren steuerlichen Berater überprüfen zu lassen.

Rechtshinweis
Da wir Objektangaben nicht selbst ermitteln, übernehmen wir hierfür keine Gewähr. Dieses Exposé ist nur für Sie persönlich bestimmt. Eine Weitergabe an Dritte ist an unsere ausdrückliche Zustimmung gebunden und unterbindet nicht unseren Provisionsanspruch bei Zustandekommen eines Vertrages. Alle Gespräche sind über unser Büro zu führen. Bei Zuwiderhandlung behalten wir uns Schadenersatz bis zur Höhe der Provisionsansprüche ausdrücklich vor. Zwischenverkauf ist nicht ausgeschlossen.

Provision
Die Provision errechnet sich aus dem Kaufpreis. Für ein Exposé und weitere Informationen zum Objekt sowie einen Besichtigungstermin füllen Sie bitte die nachfolgenden Angaben im Kontaktformular aus:
- vollständiger Name/Anschrift,
- E-Mail-Adresse,
- Telefon/Mobilnummer.

Anmerkung
Alle Angaben stammen vom Eigentümer. Für die Richtigkeit übernehmen wir keine Haftung. Bitte bedenken Sie, dass auch die beste Beschreibung keinen Besichtigungstermin ersetzen kann. Wir stehen Ihnen gerne für Fragen zur Verfügung.

Sonstiges
Sehr geehrte Interessentin, sehr geehrter Interessent, sollten Sie eine Anfrage zu diesem Objekt an uns senden, beauftragen Sie uns für Sie tätig zu werden. Wir wollen Ihre Anfrage und Ihr Anliegen umgehend beantworten und wenn Sie wünschen auch kurzfristig einen Besichtigungstermin vereinbaren. Wir weisen darauf hin, dass gemäß Fernabsatzgesetz hiermit ein Vertragsverhältnis nachgewiesen werden kann, und dass bei Vertragsabschlüssen von Kaufverträgen die im Exposé ausgewiesene Courtage zu zahlen ist.

IAD Immobilien Agentur Deutschland GmbH


Copyright © expowand.de

IAD Immobilien Agentur Deutschland GmbH

Made with by expowand

Anfrage stellen