Kauf - Haus

Teilsaniertes Zweifamilienhaus. Freies DG zum individuellen Ausbau vorbereitet. 1000m² Grundstück

                                 

06369 Köthen (Anhalt) / Porst

97.900 €

Objekt-Nr: MA-KK0162

Eckdaten

Kauf - Haus

Angebotsart

Zweifamilienhaus

Immobilientyp

06369 Köthen (Anhalt) / Porst

Adresse

1920

Baujahr

2019

Letzte Modernisierung / Sanierung

Frühjahr 2024

Verfügbar ab

Saniert

Objektzustand

Garagen/Stellplätze

Art: Außenstellplatz

Anzahl Stellplätze: 4

Beschreibung

Dieses solide Zweifamilienhaus auf einem ca. 1069m² großen Grundstück stellt ein besonderes Angebot dar. Es eignet sich gleichermaßen gut für die Vermietung sowie für den persönlichen Gebrauch.
Aufbauend auf einer soliden Grundsubstanz wurde das Haus bereits zu einem großen Teil saniert und im EG teilvermietet.

Im Rahmen der Sanierungen wurde das Dach incl. Dämmung sowie im EG Heizung, Elektro und Fenster erneuert.
Eine Außentreppe wurde angebracht, die den separaten Zugang zum DG ermöglicht. Das Nebengebäude im Hofbereich wurde komplett saniert.
Der Käufer kann nunmehr das vorbereitete Dachgeschoß final ausbauen und nach seinen Wünschen gestalten.

Der Clou, Baumaterialien zum Trockenausbau, der Dämmung der Fassade und der Hofgestaltung sind bereits vorhanden und im Kaufpreis enthalten.
Wirft man einen Blick auf die Wirtschaftlichkeit, so erhalten Sie bereits vom 1. Tag an ca. 190,- € Kaltmiete.

Mit etwas handwerklichem Geschick unter Nutzung des vorhanden Baumaterials und geringen ergänzenden Investitionen ist das Objekt schnell zur Eigennutzung oder Vermietung fertiggestellt.

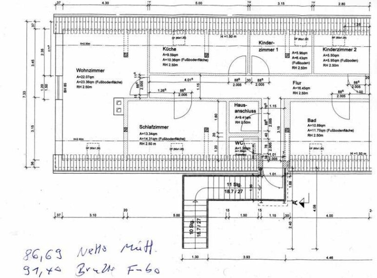
Fläche

ca. 185 m²

Wohnfläche

ca. 1.069 m²

Grundstücks­fläche

9

Zimmer

5

Anzahl Schlafzimmer

2

Anzahl Badezimmer

2

Etagenzahl insgesamt

Preis

Gesamtkosten

110.578 €


Kaufpreis

97.900 €

Grunderwerbsteuer

4.895 €
5,0 %

Maklerprovision (inkl. 19 % MwSt.)

5.825 €
5,95 % *

Notarkosten

1.469 €
1,5 %

Grundbucheintrag

490 €
0,5 %

* 5,95 % Käuferprovision inkl. 19 % MwSt.
Vertragsgrundlage unserer Leistung sind unsere Allgemeinen Geschäftsbedingungen.

Dies ist der aktuelle Angebotskaufpreis. Wir weisen darauf hin, dass dieser Angebotskaufpreis fallen oder bei erheblicher Nachfrage nach Objekten dieser Art auch steigen kann.

Ausstattung

Keller
Bodenbelag: Fliesen, Laminat, Nach Wunsch

Teilsaniertes Objekt zum finalen Ausbau.
Vermietete Wohnung im sanierten Teil des EG
Alle Anschlüsse an die öffentlichen Netze vorhanden
saniertes Nebengebäude
Großer Innenhof und Garten.

Der Energieausweis befindet sich in Vorbereitung und wird dann bei der Besichtigung vorgelegt.

Weitere Immobilien

270.000 €
6 Zimmer | 140 m²
Tornau vor der Heide
44.000 €
2 Zimmer | 73 m²
Könnern, OT Lebendorf
99.750 €
3 Zimmer | 80 m²
Könnern, OT Nelben
332.000 €
4 Zimmer | 98 m²
Dessau-Roßlau
900.000 €
1.340 m²
Bitterfeld
49.000 €
4 Zimmer | 80 m²
Dessau-Roßlau
45.000 €
15 Zimmer | 210 m²
Calbe (Saale)
280.000 €
4 Zimmer | 105 m²
Oranienbaum

Sonstiges

Bitte beachten Sie, dass nur ein VOLLSTÄNDIG AUSGEFÜLLTES Kontaktformular von uns bearbeitet werden kann.

Herr Klaus-Peter Kliebe
Lizenzpartner der IAD Immobilien Agentur Deutschland GmbH
Benno-Strauß Straße 7b, 90763 Fürth
Tel.: +49 176 21798685
Email: k.kliebe@iad-immobilien.eu
Aufsichtsbehörde nach § 34 c Gewerbeordnung
Landeshauptstadt Magdeburg, 39090 Magdeburg

Lage

Der kleine Ortsteil Porst liegt im Nordosten der Stadt Köthen, wenige Minuten vom Zentrum entfernt.
Köthen verfügt über eine umfangreiche Infrastruktur.
Kindergärten, Schulen, Dienstleistungen, Einkaufen sind ausreichend und vielfältig vorhanden.

Karte

06369 Köthen (Anhalt) / Porst

Möchten Sie ein Exposé anfordern? Nutzen Sie dazu unser praktisches Online-Formular.

Zinsvergleich

ING-DiBa AG
ING-DiBa AG

Monatliche Rate : 354,43 €

Summe : 68.600,00 €

Effektivzins

4,33 %

Zins : 4,20 %

Zinsbindung : 10 Jahr(e)

Restschuld nach Zinsbindungsende : 51.586,25 €

ING-DiBa AG
ING-DiBa AG

Monatliche Rate : 348,72 €

Summe : 68.600,00 €

Effektivzins

4,22 %

Zins : 4,10 %

Zinsbindung : 10 Jahr(e)

Restschuld nach Zinsbindungsende : 51.674,87 €

Deutsche Kreditbank AG
Deutsche Kreditbank AG

Monatliche Rate : 375,20 €

Summe : 68.530,00 €

Effektivzins

4,71 %

Zins : 4,57 %

Zinsbindung : 10 Jahr(e)

Restschuld nach Zinsbindungsende : 51.196,48 €

ERGO Lebensversicherung AG
ERGO Lebensversicherung AG

Monatliche Rate : 378,63 €

Summe : 68.530,00 €

Effektivzins

4,78 %

Zins : 4,63 %

Zinsbindung : 10 Jahr(e)

Restschuld nach Zinsbindungsende : 51.140,62 €

Gladbacher Bank AG
Gladbacher Bank AG

Monatliche Rate : 402,61 €

Summe : 68.530,00 €

Effektivzins

5,20 %

Zins : 5,05 %

Zinsbindung : 10 Jahr(e)

Restschuld nach Zinsbindungsende : 50.747,30 €

Eigenkapital 29.370 €; Tilgungsrate 1,00 %

Rechtliches

Die in diesem Exposé enthaltenen Informationen dürfen wir Sie bitten, vertraulich zu behandeln. Eine Weitergabe an Dritte ist unzulässig. Die Angaben in diesem Exposé beruhen auf den uns erteilten Informationen. Eine Haftung für die Richtigkeit bzw. Vollständigkeit können wir jedoch nicht übernehmen, dies gilt auch für die Beschaffenheit und Größe von Flächenangaben. Im Falle von eigenen Fehlern haften wir nur für Vorsatz und grobe Fahrlässigkeit. Im Übrigen gelten unsere allgemeinen Geschäftsbedingungen. Im Hinblick auf die Kompliziertheit der Steuergesetzgebung bitten wir Sie, die steuerlichen Auswirkungen Ihres Kaufes in jedem Falle durch Ihren steuerlichen Berater überprüfen zu lassen.

Rechtshinweis
Da wir Objektangaben nicht selbst ermitteln, übernehmen wir hierfür keine Gewähr. Dieses Exposé ist nur für Sie persönlich bestimmt. Eine Weitergabe an Dritte ist an unsere ausdrückliche Zustimmung gebunden und unterbindet nicht unseren Provisionsanspruch bei Zustandekommen eines Vertrages. Alle Gespräche sind über unser Büro zu führen. Bei Zuwiderhandlung behalten wir uns Schadenersatz bis zur Höhe der Provisionsansprüche ausdrücklich vor. Zwischenverkauf ist nicht ausgeschlossen.

Provision
Die Provision errechnet sich aus dem Kaufpreis. Für ein Exposé und weitere Informationen zum Objekt sowie einen Besichtigungstermin füllen Sie bitte die nachfolgenden Angaben im Kontaktformular aus:
- vollständiger Name/Anschrift,
- E-Mail-Adresse,
- Telefon/Mobilnummer.

Anmerkung
Alle Angaben stammen vom Eigentümer. Für die Richtigkeit übernehmen wir keine Haftung. Bitte bedenken Sie, dass auch die beste Beschreibung keinen Besichtigungstermin ersetzen kann. Wir stehen Ihnen gerne für Fragen zur Verfügung.

Sonstiges
Sehr geehrte Interessentin, sehr geehrter Interessent, sollten Sie eine Anfrage zu diesem Objekt an uns senden, beauftragen Sie uns für Sie tätig zu werden. Wir wollen Ihre Anfrage und Ihr Anliegen umgehend beantworten und wenn Sie wünschen auch kurzfristig einen Besichtigungstermin vereinbaren. Wir weisen darauf hin, dass gemäß Fernabsatzgesetz hiermit ein Vertragsverhältnis nachgewiesen werden kann, und dass bei Vertragsabschlüssen von Kaufverträgen die im Exposé ausgewiesene Courtage zu zahlen ist.

IAD Immobilien Agentur Deutschland GmbH


Copyright © expowand.de

IAD Immobilien Agentur Deutschland GmbH

Made with by expowand

Anfrage stellen