Kauf - Haus

Familienfreundliches EFH mit barrierefreier Einliegerwohnung, 2 Garagen & großem Garten

                                 

55606 Kirn

339.000 €

Objekt-Nr: KL-MH3392

Eckdaten

Kauf - Haus

Angebotsart

Einfamilienhaus

Immobilientyp

55606 Kirn

Adresse

1999

Baujahr

2022

Letzte Modernisierung / Sanierung

Gepflegt

Objektzustand

Normal

Qualität der Ausstattung

Garagen/Stellplätze

Art: Garage

Anzahl Stellplätze: 2

Art: Außenstellplatz

Anzahl Stellplätze: 2

Beschreibung

Dieses großzügige Einfamilienhaus mit einer barrierefreien Einliegerwohnung bietet modernen Wohnkomfort in einer ruhigen und begehrten Wohnlage von Kirn.
Die Immobilie eignet sich ideal für Mehrgenerationenwohnen oder als Kombination aus Wohnen und vermieten.

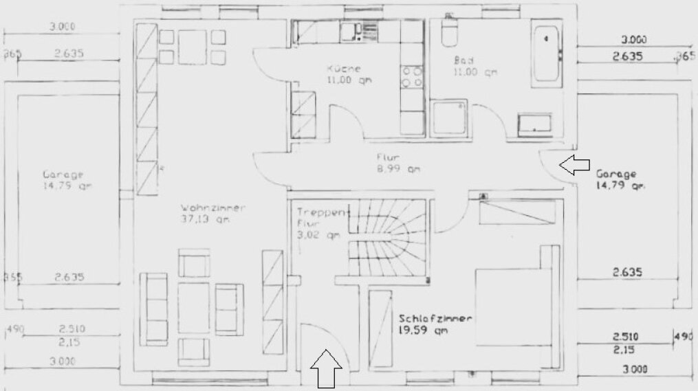
Die Einliegerwohnung im Erdgeschoss mit ca. 85m² ist vollständig barrierefrei und über die Garage direkt zugänglich.
Ein Flur verbindet alle Räume, darunter, ein großzügiges Tageslichtbad mit Badewanne und Dusche,
ein geräumiges Schlafzimmer sowie eine Essküche mit direktem Zugang zum weitläufigen Wohn- und Essbereich.
Ein separater Stellplatz vor der Garage ergänzt das Angebot.

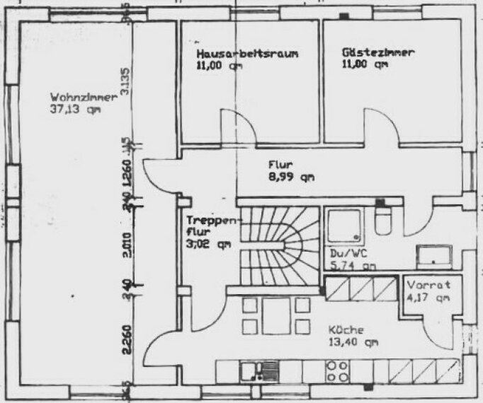
Im Obergeschoss der Hauptwohnung mit ca. 150m² befindet sich eine funktionale Essküche
sowie ein großzügiges Wohn- und Esszimmer mit direktem Zugang zur Terrasse und in den Garten.
Zudem gibt es ein Kinderzimmer, ein Gästezimmer und ein Duschbad.
Vom Flur aus gelangt man auf eine hochwertig überdachte Terrasse, die zum Verweilen einlädt.

Das Dachgeschoss bietet ein helles und freundliches Treppenhaus,
ein geräumiges Schlafzimmer, ein großes Tageslichtbad mit Badewanne sowie ein weiteres Kinderzimmer.
Das Dach ist gedämmt und sorgt somit für energieeffizientes Wohnen.

Fläche

ca. 252 m²

Wohnfläche

ca. 568 m²

Grundstücks­fläche

ca. 40 m²

Nutzfläche

8

Zimmer

5

Anzahl Schlafzimmer

3

Anzahl Badezimmer

3

Etagenzahl insgesamt

Preis

Gesamtkosten

374.832 €


Kaufpreis

339.000 €

Grunderwerbsteuer

16.950 €
5,0 %

Maklerprovision (inkl. 19 % MwSt.)

12.102 €
3,57 % *

Notarkosten

5.085 €
1,5 %

Grundbucheintrag

1.695 €
0,5 %

* 3,57 % Käuferprovision inkl. 19 % MwSt.
Vertragsgrundlage unserer Leistung sind unsere Allgemeinen Geschäftsbedingungen.

Dies ist der aktuelle Angebotskaufpreis. Wir weisen darauf hin, dass dieser Angebotskaufpreis fallen oder bei erheblicher Nachfrage nach Objekten dieser Art auch steigen kann.

Ausstattung

Terrasse
Einbauküche
Bodenbelag: Fliesen, Laminat

Zur Ausstattung gehören eine Fußbodenheizung im gesamten Haus,
eine 2015 erneuerte Gasheizung sowie eine hochwertige Terrassenüberdachung.
Die ruhige Wohnlage und gute Anbindung machen diese Immobilie besonders attraktiv.
Dieses Haus ist ideal für Familien oder eine Mehrgenerationennutzung.

Energie

Energieausweis

Energieausweis liegt für das Gebäude vor

Energieausweis

30.01.2035

Gültig bis

Verbrauchsausweis

Energieausweistyp

74,50 kWh/(m²*a)

Endenergieverbrauch

Gas

Wesentliche Energieträger

1999

Baujahr laut Energieausweis

Fußbodenheizung

Heizungsart

Weitere Immobilien

210.000 €
5 Zimmer | 149 m²
Rheinland-Pfalz - Martinstein
80.000 €
1 Zimmer | 37 m²
Bad Sobernheim
298.000 €
5 Zimmer | 180 m²
Idar-Oberstein
230.000 €
4 Zimmer | 100 m²
Bad Sobernheim
890.000 €
4 Zimmer | 144 m²
Idar-Oberstein
155.000 €
1 Zimmer | 115 m²
Obermoschel
210.000 €
9 Zimmer | 270 m²
Rinzenberg
219.000 €
3 Zimmer | 74 m²
Bad Kreuznach
109.000 €
6 Zimmer | 178 m²
Bosenbach
229.000 €
7 Zimmer | 142 m²
Bad Kreuznach
517.000 €
5 Zimmer | 140 m²
Bad Kreuznach
250.000 €
3 Zimmer | 90 m²
Bad Kreuznach

Sonstiges

Bitte beachten Sie, dass nur ein VOLLSTÄNDIG AUSGEFÜLLTES Kontaktformular von uns bearbeitet werden kann.

Herr Martin Henzmann
Hauptstr. 33, 66851 Bann
Tel.: +49 177 8877116
Email: m.henzmann@iad-immobilien.de
Aufsichtsbehörde nach § 34 c Gewerbeordnung
Verbandsgemeindeverwaltung Landstuhl Kaiserstr. 49 66849 Landstuhl
Lizenzpartner der IAD Immobilien Agentur Deutschland GmbH

Lage

Das Haus befindet sich in einer bevorzugten Wohngegend von Kirn, die sich durch ihre ruhige und familienfreundliche Atmosphäre auszeichnet.
Einkaufsmöglichkeiten, Schulen, Ärzte und Freizeiteinrichtungen sind in wenigen Minuten erreichbar.
Die Stadt Kirn bietet eine hervorragende Infrastruktur sowie eine gute Anbindung an das überregionale Verkehrsnetz.
Die landschaftlich reizvolle Umgebung lädt zu Spaziergängen und Outdoor-Aktivitäten ein, während die Nähe zur Nahe und den umliegenden Weinbergen ein besonderes Flair verleiht.

Karte

55606 Kirn

Möchten Sie ein Exposé anfordern? Nutzen Sie dazu unser praktisches Online-Formular.

Zinsvergleich

ING-DiBa AG
ING-DiBa AG

Monatliche Rate : 1.186,50 €

Summe : 237.300,00 €

Effektivzins

4,11 %

Zins : 4,00 %

Zinsbindung : 10 Jahr(e)

Restschuld nach Zinsbindungsende : 179.062,72 €

ING-DiBa AG
ING-DiBa AG

Monatliche Rate : 1.166,73 €

Summe : 237.300,00 €

Effektivzins

4,00 %

Zins : 3,90 %

Zinsbindung : 10 Jahr(e)

Restschuld nach Zinsbindungsende : 179.367,99 €

AXA Konzern AG und deren darlehensgebenden Gesellschaften
AXA Konzern AG und deren darlehensgebenden Gesellschaften

Monatliche Rate : 1.204,30 €

Summe : 237.300,00 €

Effektivzins

4,20 %

Zins : 4,09 %

Zinsbindung : 10 Jahr(e)

Restschuld nach Zinsbindungsende : 178.785,09 €

Commerzbank AG
Commerzbank AG

Monatliche Rate : 1.354,59 €

Summe : 237.300,00 €

Effektivzins

4,98 %

Zins : 4,85 %

Zinsbindung : 10 Jahr(e)

Restschuld nach Zinsbindungsende : 176.375,78 €

Volkswohl Bund Lebensversicherung a.G.
Volkswohl Bund Lebensversicherung a.G.

Monatliche Rate : 1.269,56 €

Summe : 237.300,00 €

Effektivzins

4,54 %

Zins : 4,42 %

Zinsbindung : 10 Jahr(e)

Restschuld nach Zinsbindungsende : 177.753,91 €

Eigenkapital 101.700 €; Tilgungsrate 1,00 %

Rechtliches

Die in diesem Exposé enthaltenen Informationen dürfen wir Sie bitten, vertraulich zu behandeln. Eine Weitergabe an Dritte ist unzulässig. Die Angaben in diesem Exposé beruhen auf den uns erteilten Informationen. Eine Haftung für die Richtigkeit bzw. Vollständigkeit können wir jedoch nicht übernehmen, dies gilt auch für die Beschaffenheit und Größe von Flächenangaben. Im Falle von eigenen Fehlern haften wir nur für Vorsatz und grobe Fahrlässigkeit. Im Übrigen gelten unsere allgemeinen Geschäftsbedingungen. Im Hinblick auf die Kompliziertheit der Steuergesetzgebung bitten wir Sie, die steuerlichen Auswirkungen Ihres Kaufes in jedem Falle durch Ihren steuerlichen Berater überprüfen zu lassen.

Rechtshinweis
Da wir Objektangaben nicht selbst ermitteln, übernehmen wir hierfür keine Gewähr. Dieses Exposé ist nur für Sie persönlich bestimmt. Eine Weitergabe an Dritte ist an unsere ausdrückliche Zustimmung gebunden und unterbindet nicht unseren Provisionsanspruch bei Zustandekommen eines Vertrages. Alle Gespräche sind über unser Büro zu führen. Bei Zuwiderhandlung behalten wir uns Schadenersatz bis zur Höhe der Provisionsansprüche ausdrücklich vor. Zwischenverkauf ist nicht ausgeschlossen.

Provision
Die Provision errechnet sich aus dem Kaufpreis. Für ein Exposé und weitere Informationen zum Objekt sowie einen Besichtigungstermin füllen Sie bitte die nachfolgenden Angaben im Kontaktformular aus:
- vollständiger Name/Anschrift,
- E-Mail-Adresse,
- Telefon/Mobilnummer.

Anmerkung
Alle Angaben stammen vom Eigentümer. Für die Richtigkeit übernehmen wir keine Haftung. Bitte bedenken Sie, dass auch die beste Beschreibung keinen Besichtigungstermin ersetzen kann. Wir stehen Ihnen gerne für Fragen zur Verfügung.

Sonstiges
Sehr geehrte Interessentin, sehr geehrter Interessent, sollten Sie eine Anfrage zu diesem Objekt an uns senden, beauftragen Sie uns für Sie tätig zu werden. Wir wollen Ihre Anfrage und Ihr Anliegen umgehend beantworten und wenn Sie wünschen auch kurzfristig einen Besichtigungstermin vereinbaren. Wir weisen darauf hin, dass gemäß Fernabsatzgesetz hiermit ein Vertragsverhältnis nachgewiesen werden kann, und dass bei Vertragsabschlüssen von Kaufverträgen die im Exposé ausgewiesene Courtage zu zahlen ist.

IAD Immobilien Agentur Deutschland GmbH


Copyright © expowand.de

IAD Immobilien Agentur Deutschland GmbH

Made with by expowand

Anfrage stellen