Kauf - Haus

Ruhe, Natur, Lebensqualität – Haus im Herzen des Unterallgäus

                                 

86842 Türkheim

695.000 €

Objekt-Nr: A-TS0002

Eckdaten

Kauf - Haus

Angebotsart

Einfamilienhaus

Immobilientyp

86842 Türkheim

Adresse

2011

Baujahr

Haus fertig gestellt

Bauphase

12.2026

Verfügbar ab

Gepflegt

Objektzustand

Normal

Qualität der Ausstattung

Garagen/Stellplätze

Art: Garage

Anzahl Stellplätze: 1

Art: Außenstellplatz

Anzahl Stellplätze: 3

Beschreibung

Dieses charmante Einfamilienhaus überzeugt durch seine ruhige Lage im idyllischen Unterallgäu sowie durch eine durchdachte Raumaufteilung und ein angenehmes Wohnambiente. Eingebettet in eine gepflegte Nachbarschaft bietet die Immobilie ideale Voraussetzungen für Familien, Paare oder Ruhesuchende, die naturnah wohnen und dennoch gut angebunden sein möchten.

Das Haus präsentiert sich in einem gepflegten Zustand und wurde laufend instand gehalten. Helle, freundliche Räume sowie großzügige Fensterflächen schaffen eine angenehme Wohnatmosphäre mit viel Tageslicht. Der offene Wohn- und Essbereich bildet das Herzstück des Hauses und lädt zu geselligen Stunden mit Familie und Freunden ein.
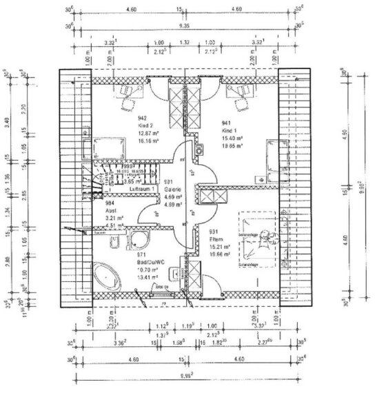
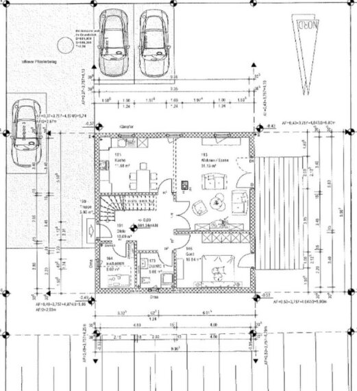
Die Immobilie verfügt über mehrere gut geschnittene Zimmer, die individuell als Schlaf-, Kinder-, Gäste- oder Arbeitszimmer genutzt werden können. Die funktionale Küche bietet ausreichend Platz und Gestaltungsmöglichkeiten für Ihre persönlichen Wünsche.


*Energieausweis ist in Bearbeitung

Fläche

ca. 145 m²

Wohnfläche

ca. 528 m²

Grundstücks­fläche

ca. 528 m²

Nutzfläche

4

Zimmer

5

Anzahl Schlafzimmer

1

Anzahl Badezimmer

2

Etagenzahl insgesamt

Preis

Gesamtkosten

758.036 €


Kaufpreis

695.000 €

Grunderwerbsteuer

24.325 €
3,5 %

Maklerprovision (inkl. 19 % MwSt.)

24.811 €
3,57 % *

Notarkosten

10.425 €
1,5 %

Grundbucheintrag

3.475 €
0,5 %

* 3,57 % Käuferprovision inkl. 19 % MwSt.
Vertragsgrundlage unserer Leistung sind unsere Allgemeinen Geschäftsbedingungen.

Dies ist der aktuelle Angebotskaufpreis. Wir weisen darauf hin, dass dieser Angebotskaufpreis fallen oder bei erheblicher Nachfrage nach Objekten dieser Art auch steigen kann.

Ausstattung

Terrasse
Einbauküche
Gäste-WC
Barrierefrei
Bodenbelag: Fliesen, Laminat, Parkett

- Gasheizung
- EG Fußbodenheizung und im OG Badezimmern ( Elektrische Zusatz Heizung)
- Zentrale Lüftungsanlage
- KfW-70 Energiestandard
- Photovoltaikanlage (FOX-Anlage)16KWp/Ost-West Ausrichtung
- Stromspeicher ca. 15,4 kWh
- Solarunterstützte Warmwasseraufbereitung über Dachanlage
- Warmwasserspeicher 290 Liter
- Kunststofffenster im Erd- und Obergeschoss
- Schallschutzklasse 2
- Großzügige Terrasse
- Großer Außen-Grillbereich
- Sauna im Außenbereich
- Gäste WC mit Dusche

Sonstiges

Bitte beachten Sie, dass nur ein VOLLSTÄNDIG AUSGEFÜLLTES Kontaktformular von uns bearbeitet werden kann.

Frau Tatjana Serwinsky
Königsbrunner Str. 3, 86179 Ausgburg
Tel.: +49 15565 805031
Email: t.serwinsky@iad-immobilien.de
Aufsichtsbehörde nach § 34 c Gewerbeordnung
IHK für München und Oberbayern, Max-Joseph-Straße 2, 80333 München
Lizenzpartner der IAD Immobilien Agentur Deutschland GmbH

Lage

Die charmante Marktgemeinde Türkheim im Unterallgäu vereint ländliche Idylle mit einer hervorragenden Infrastruktur und bietet somit ideale Voraussetzungen für ein angenehmes Wohnen. Mit rund 7.300 Einwohnern überzeugt der Ort durch seine ruhige, familienfreundliche Atmosphäre sowie seine hohe Lebensqualität.
Türkheim, im schwäbischen Dialekt auch liebevoll „Dürka“ genannt, liegt am südlichen Rand des Naturparks Augsburg-Westliche Wälder und ist damit ein perfekter Ausgangspunkt für zahlreiche Freizeit- und Erholungsmöglichkeiten in der Natur. Gleichzeitig profitieren Bewohner von einer ausgezeichneten Verkehrsanbindung: Die Autobahn A96 ist schnell erreichbar und ermöglicht eine zügige Verbindung in Richtung München, das etwa 70 Kilometer entfernt liegt. Auch mit der Bahn bestehen gute Anbindungen in die umliegenden Städte und die Landeshauptstadt.

Im Ort selbst finden sich vielfältige Einkaufsmöglichkeiten zur Deckung des täglichen Bedarfs sowie weitere Einrichtungen des täglichen Lebens. Familien profitieren besonders von der guten Bildungsinfrastruktur: Eine Grundschule, weiterführende Schulen sowie ein Gymnasium sind bequem erreichbar. Zudem stehen mehrere Kindergärten in der näheren Umgebung zur Verfügung und sorgen für eine optimale Betreuung der jüngsten Bewohner.
Insgesamt bietet die Lage eine gelungene Kombination aus naturnahem Wohnen, guter Erreichbarkeit und einer soliden Infrastruktur – ideal für Familien, Berufspendler und alle, die ruhiges Wohnen mit guter Anbindung verbinden möchten.

Karte

86842 Türkheim

Möchten Sie ein Exposé anfordern? Nutzen Sie dazu unser praktisches Online-Formular.

Zinsvergleich

ING-DiBa AG
ING-DiBa AG

Monatliche Rate : 2.420,34 €

Summe : 486.500,00 €

Effektivzins

4,07 %

Zins : 3,97 %

Zinsbindung : 10 Jahr(e)

Restschuld nach Zinsbindungsende : 367.293,24 €

ING-DiBa AG
ING-DiBa AG

Monatliche Rate : 2.379,80 €

Summe : 486.500,00 €

Effektivzins

3,97 %

Zins : 3,87 %

Zinsbindung : 10 Jahr(e)

Restschuld nach Zinsbindungsende : 367.919,14 €

Hannoversche
Hannoversche

Monatliche Rate : 2.387,90 €

Summe : 486.500,00 €

Effektivzins

3,99 %

Zins : 3,89 %

Zinsbindung : 10 Jahr(e)

Restschuld nach Zinsbindungsende : 367.795,46 €

Allianz Lebensversicherung AG
Allianz Lebensversicherung AG

Monatliche Rate : 2.590,61 €

Summe : 486.500,00 €

Effektivzins

4,51 %

Zins : 4,39 %

Zinsbindung : 10 Jahr(e)

Restschuld nach Zinsbindungsende : 364.617,56 €

Volkswohl Bund Lebensversicherung a.G.
Volkswohl Bund Lebensversicherung a.G.

Monatliche Rate : 2.602,78 €

Summe : 486.500,00 €

Effektivzins

4,54 %

Zins : 4,42 %

Zinsbindung : 10 Jahr(e)

Restschuld nach Zinsbindungsende : 364.422,39 €

Eigenkapital 208.500 €; Tilgungsrate 1,00 %

Rechtliches

Die in diesem Exposé enthaltenen Informationen dürfen wir Sie bitten, vertraulich zu behandeln. Eine Weitergabe an Dritte ist unzulässig. Die Angaben in diesem Exposé beruhen auf den uns erteilten Informationen. Eine Haftung für die Richtigkeit bzw. Vollständigkeit können wir jedoch nicht übernehmen, dies gilt auch für die Beschaffenheit und Größe von Flächenangaben. Im Falle von eigenen Fehlern haften wir nur für Vorsatz und grobe Fahrlässigkeit. Im Übrigen gelten unsere allgemeinen Geschäftsbedingungen. Im Hinblick auf die Kompliziertheit der Steuergesetzgebung bitten wir Sie, die steuerlichen Auswirkungen Ihres Kaufes in jedem Falle durch Ihren steuerlichen Berater überprüfen zu lassen.

Rechtshinweis
Da wir Objektangaben nicht selbst ermitteln, übernehmen wir hierfür keine Gewähr. Dieses Exposé ist nur für Sie persönlich bestimmt. Eine Weitergabe an Dritte ist an unsere ausdrückliche Zustimmung gebunden und unterbindet nicht unseren Provisionsanspruch bei Zustandekommen eines Vertrages. Alle Gespräche sind über unser Büro zu führen. Bei Zuwiderhandlung behalten wir uns Schadenersatz bis zur Höhe der Provisionsansprüche ausdrücklich vor. Zwischenverkauf ist nicht ausgeschlossen.

Provision
Die Provision errechnet sich aus dem Kaufpreis. Für ein Exposé und weitere Informationen zum Objekt sowie einen Besichtigungstermin füllen Sie bitte die nachfolgenden Angaben im Kontaktformular aus:
- vollständiger Name/Anschrift,
- E-Mail-Adresse,
- Telefon/Mobilnummer.

Anmerkung
Alle Angaben stammen vom Eigentümer. Für die Richtigkeit übernehmen wir keine Haftung. Bitte bedenken Sie, dass auch die beste Beschreibung keinen Besichtigungstermin ersetzen kann. Wir stehen Ihnen gerne für Fragen zur Verfügung.

Sonstiges
Sehr geehrte Interessentin, sehr geehrter Interessent, sollten Sie eine Anfrage zu diesem Objekt an uns senden, beauftragen Sie uns für Sie tätig zu werden. Wir wollen Ihre Anfrage und Ihr Anliegen umgehend beantworten und wenn Sie wünschen auch kurzfristig einen Besichtigungstermin vereinbaren. Wir weisen darauf hin, dass gemäß Fernabsatzgesetz hiermit ein Vertragsverhältnis nachgewiesen werden kann, und dass bei Vertragsabschlüssen von Kaufverträgen die im Exposé ausgewiesene Courtage zu zahlen ist.

IAD Immobilien Agentur Deutschland GmbH


Copyright © expowand.de

IAD Immobilien Agentur Deutschland GmbH

Made with by expowand

Anfrage stellen