Kauf - Haus

stilvolle Stadtvilla mit parkähnlichem Garten und 2 Garagen

                                 

59063 Hamm

939.000 €

Objekt-Nr: W-CT0524

Eckdaten

Kauf - Haus

Angebotsart

Villa

Immobilientyp

59063 Hamm

Adresse

1927

Baujahr

Haus fertig gestellt

Bauphase

2024

Letzte Modernisierung / Sanierung

Nach Absprache 12/2026

Verfügbar ab

Gepflegt

Objektzustand

Gehoben

Qualität der Ausstattung

Garagen/Stellplätze

Art: Garage

Anzahl Stellplätze: 2

Art: Außenstellplatz

Anzahl Stellplätze: 2

Bemerkung: Stellplätze vor den Garagen

Beschreibung

Angeboten wird hier, eine Stadtvilla, in ruhiger, idyllischer Toplage in Hamm. Ein großzügiges, flexibel nutzbares Raumangebot mit ca. 330 m² Wohnfläche, besonders schöne Proportionen und ein außergewöhnlich stilvolles Ambiente, machen diese denkmalgeschützte Villa von 1927 zu einer besonderen Rarität. Umgeben von einem parkähnlichen und teilweise historischem Garten, zeigt sich das stilvolle Gebäude mit unwiderstehlichem Charme. Das Anwesen ist optimal nach Süden ausgerichtet. Ein schöner Runderker, symmetrisch angeordnete weiße Sprossenfenster und eine Terrasse mit Freitreppe prägen die eindrucksvolle Fassade. Hinzu kommen 2 Garagen und Stellplätze davor.

Fläche

ca. 330 m²

Wohnfläche

ca. 1.380 m²

Grundstücks­fläche

ca. 200 m²

Nutzfläche

12

Zimmer

8

Anzahl Schlafzimmer

2

Anzahl Badezimmer

3

Etagenzahl insgesamt

Preis

Gesamtkosten

1.052.337 €


Kaufpreis

939.000 €

Grunderwerbsteuer

61.035 €
6,5 %

Maklerprovision (inkl. 19 % MwSt.)

33.522 €
3,57 % *

Notarkosten

14.085 €
1,5 %

Grundbucheintrag

4.695 €
0,5 %

* 3,57 % Käuferprovision inkl. 19 % MwSt.
Vertragsgrundlage unserer Leistung sind unsere Allgemeinen Geschäftsbedingungen.

Dies ist der aktuelle Angebotskaufpreis. Wir weisen darauf hin, dass dieser Angebotskaufpreis fallen oder bei erheblicher Nachfrage nach Objekten dieser Art auch steigen kann.

Ausstattung

Balkon
Terrasse
Einbauküche
Keller
Gäste-WC
Bodenbelag: Parkett, Marmorboden

Im Hochparterre präsentieren sich mit einem charmant gestalteten Entréebereich, einem weitläufigen Wohn-/Essbereich mit Stil und Raffinesse und einem Kaminzimmer, stilvolle Repräsentationsräume, die höchste Ansprüche an Eleganz und Komfort erfüllen.
Eine äußerst luxuriöse Küche und ein Garderobenbereich mit Gäste-WC komplettieren die Etage. Die voll ausgestattete und neuwertige Küche, lässt selbstverständlich keine Wünsche offen und macht das Kochen zum Erlebnis. Besondere Merkmale wie der charmante Kamin mit seinem außergewöhnlichen Design, strahlen Gemütlichkeit aus. Fünf Schlafzimmer im ersten Obergeschoss sowie zwei weitere Schlaf- oder Arbeitszimmer und eine Galerie im Dachgeschoss bieten - zusammen mit vier Bädern - ausreichend Platz für eine größere Familie. Ständig wurde die Villa mit hervorragendem Stilempfinden umfassend und äußerst geschmackvoll renoviert. Die Großzügigkeit der Räume bietet viel Platz für Familien, Freunde und für große Einladungen.
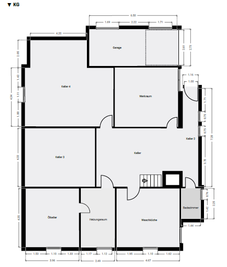
Im Obergeschoss ist es perfekt gelungen, Schlaf-, Wohn- und Arbeitsbereich zu kombinieren. Die kommunikative Diele ist hier das Zentrum und unterstreicht durch die aufwendig gearbeitete Holztreppe auch hier den luxuriösen Villencharakter. Eine großzügige Grundstücksfläche von ca. 1.380 m² ist liebevoll mit altem Baumbestand und üppigem Grün eingefasst – ein seltener Ruhepol im urbanen Kontext, der eine besondere Atmosphäre bietet. Die großzügige, nach Süden ausgerichtete Terrasse von 20 Quadratmetern sowie eine kleiner nach Süden ausgerichteter Balkon, laden zum Entspannen und Genießen der umliegenden Natur ein, dies alles machen dieses Haus zu etwas ganz Besonderem. Der Keller wurde ebenfalls aufwendig saniert und definitiv an nichts gespart. Hier befindet sich die Öl -Zentralheizung, der Waschraum, ein Abstellraum und ein origineller Weinkeller für die Lagerung edler Tropfen. Dieses einzigartige Anwesen vereint den Charme vergangener Zeiten mit modernem Luxus und ist ein wahrhaft exklusives Zuhause. Die dennoch zentrale Lage mit der Nähe zur Innenstadt, Restaurants, Kindergarten, Schulen und Einkaufsmöglichkeiten sind ein weiterer Pluspunkt. Erleben Sie die perfekte Harmonie von Tradition und Moderne in einem Haus, das keine Wünsche offenlässt. Verpassen Sie nicht die Gelegenheit, dieses einmalige Juwel zu erwerben. Gerne nehme ich Ihre Besichtigungswünsche entgegen.

• Baujahr 1924
• Denkmalschutz
• Dacherneuerung + Dämmung (1988)
• Außenwände Nord- und Ostseite Wärmegedämmt
• Kellersanierung (2022), Neue Böden (Fließestrich + Betonfarbe)
• Neue Einbauküche (2024)
• Bleiverglaste Fenster (Diele)
• 4 Meter Markise (Terrasse) elektrisch bedienbar
• Nutzbarer Kamin (abgenommen vom Schornsteinfeger)
• Deckenhöhe 2,70 Meter
• Schiebtüren im unteren Wohnbereich aus Sicherheitsglas
• 12 Zimmer
• 8 Schlafzimmer
• 2 Badezimmer, 2 Gäste WCs
• Ölheizung von 1987
• Ca. 200 m² Nutzfläche (Wohnflächenbemessung liegt vor)
• Ca. 330 m² Wohnfläche (Wohnflächenbemessung liegt vor)
• 1358 m² Grundstücksfläche (laut Grundbuchauszug)
• Ca. 20 m² Terrassenfläche

Energie

Dieses Gebäude unterliegt nicht den GEG-Anforderungen

Energieausweis

Öl

Wesentliche Energieträger

Öl-Heizung

Heizungsart

Sonstiges

Bitte beachten Sie, dass nur ein VOLLSTÄNDIG AUSGEFÜLLTES Kontaktformular von uns bearbeitet werden kann.

Frau Christine Thiede
Windhornstraße 18, 42281 Wuppertal
Tel.: +49 202 7052479
Email: c.thiede@iad-immobilien.de
Aufsichtsbehörde nach § 34 c Gewerbeordnung
Stadt Wuppertal Johannes-Rau-Platz 1, 42275 Wuppertal
Lizenzpartner der IAD Immobilien Agentur Deutschland GmbH

Lage

Die unter Denkmalschutz stehende Villa beeindruckt durch ihre zentrale und repräsentative Lage in unmittelbarer Nähe zur Innenstadt, ca. 1,2 km entfernt. Die Umgebung ist geprägt von historischen Gebäuden, großzügigen Grünflächen und einer gepflegten Nachbarschaft. Einrichtungen des täglichen Bedarfs, Bildungseinrichtungen und kulturelle Angebote sind bequem fußläufig erreich- bar und die hervorragende Anbindung an das städtische Verkehrsnetz unterstreicht die attraktive Lage. In der Nähe die Maximare Erlebnistherme

Karte

59063 Hamm

Möchten Sie ein Exposé anfordern? Nutzen Sie dazu unser praktisches Online-Formular.

Zinsvergleich

ING-DiBa AG
ING-DiBa AG

Monatliche Rate : 3.270,07 €

Summe : 657.300,00 €

Effektivzins

4,07 %

Zins : 3,97 %

Zinsbindung : 10 Jahr(e)

Restschuld nach Zinsbindungsende : 496.242,37 €

ING-DiBa AG
ING-DiBa AG

Monatliche Rate : 3.215,29 €

Summe : 657.300,00 €

Effektivzins

3,97 %

Zins : 3,87 %

Zinsbindung : 10 Jahr(e)

Restschuld nach Zinsbindungsende : 497.089,05 €

Deutsche Kreditbank AG
Deutsche Kreditbank AG

Monatliche Rate : 3.242,68 €

Summe : 657.300,00 €

Effektivzins

4,02 %

Zins : 3,92 %

Zinsbindung : 10 Jahr(e)

Restschuld nach Zinsbindungsende : 496.666,45 €

Münchener Hypothekenbank eG
Münchener Hypothekenbank eG

Monatliche Rate : 3.658,97 €

Summe : 657.300,00 €

Effektivzins

4,80 %

Zins : 4,68 %

Zinsbindung : 10 Jahr(e)

Restschuld nach Zinsbindungsende : 490.069,22 €

Consors Finanz BNP Paribas
Consors Finanz BNP Paribas

Monatliche Rate : 4.650,40 €

Summe : 657.300,00 €

Effektivzins

6,72 %

Zins : 6,49 %

Zinsbindung : 10 Jahr(e)

Restschuld nach Zinsbindungsende : 472.914,70 €

Eigenkapital 281.700 €; Tilgungsrate 1,00 %

Rechtliches

Die in diesem Exposé enthaltenen Informationen dürfen wir Sie bitten, vertraulich zu behandeln. Eine Weitergabe an Dritte ist unzulässig. Die Angaben in diesem Exposé beruhen auf den uns erteilten Informationen. Eine Haftung für die Richtigkeit bzw. Vollständigkeit können wir jedoch nicht übernehmen, dies gilt auch für die Beschaffenheit und Größe von Flächenangaben. Im Falle von eigenen Fehlern haften wir nur für Vorsatz und grobe Fahrlässigkeit. Im Übrigen gelten unsere allgemeinen Geschäftsbedingungen. Im Hinblick auf die Kompliziertheit der Steuergesetzgebung bitten wir Sie, die steuerlichen Auswirkungen Ihres Kaufes in jedem Falle durch Ihren steuerlichen Berater überprüfen zu lassen.

Rechtshinweis
Da wir Objektangaben nicht selbst ermitteln, übernehmen wir hierfür keine Gewähr. Dieses Exposé ist nur für Sie persönlich bestimmt. Eine Weitergabe an Dritte ist an unsere ausdrückliche Zustimmung gebunden und unterbindet nicht unseren Provisionsanspruch bei Zustandekommen eines Vertrages. Alle Gespräche sind über unser Büro zu führen. Bei Zuwiderhandlung behalten wir uns Schadenersatz bis zur Höhe der Provisionsansprüche ausdrücklich vor. Zwischenverkauf ist nicht ausgeschlossen.

Provision
Die Provision errechnet sich aus dem Kaufpreis. Für ein Exposé und weitere Informationen zum Objekt sowie einen Besichtigungstermin füllen Sie bitte die nachfolgenden Angaben im Kontaktformular aus:
- vollständiger Name/Anschrift,
- E-Mail-Adresse,
- Telefon/Mobilnummer.

Anmerkung
Alle Angaben stammen vom Eigentümer. Für die Richtigkeit übernehmen wir keine Haftung. Bitte bedenken Sie, dass auch die beste Beschreibung keinen Besichtigungstermin ersetzen kann. Wir stehen Ihnen gerne für Fragen zur Verfügung.

Sonstiges
Sehr geehrte Interessentin, sehr geehrter Interessent, sollten Sie eine Anfrage zu diesem Objekt an uns senden, beauftragen Sie uns für Sie tätig zu werden. Wir wollen Ihre Anfrage und Ihr Anliegen umgehend beantworten und wenn Sie wünschen auch kurzfristig einen Besichtigungstermin vereinbaren. Wir weisen darauf hin, dass gemäß Fernabsatzgesetz hiermit ein Vertragsverhältnis nachgewiesen werden kann, und dass bei Vertragsabschlüssen von Kaufverträgen die im Exposé ausgewiesene Courtage zu zahlen ist.

IAD Immobilien Agentur Deutschland GmbH


Copyright © expowand.de

IAD Immobilien Agentur Deutschland GmbH

Made with by expowand

Anfrage stellen