Kauf - Haus

Neubau - freistehendes Einfamilienhaus im KfW-40-Standard in Hüfingen – ausbaufähig

                                 

78183 Hüfingen

370.000 €

Objekt-Nr: BB-CU0021

Eckdaten

Kauf - Haus

Angebotsart

Einfamilienhaus

Immobilientyp

78183 Hüfingen

Adresse

2026

Baujahr

01.06.2026

Verfügbar ab

Erstbezug

Objektzustand

Gehoben

Qualität der Ausstattung

Beschreibung

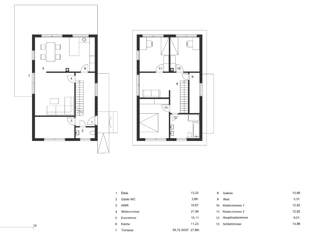
Zum Verkauf steht ein exklusives, freistehendes Neubau-Einfamilienhaus mit insgesamt ca. 146 m² Wohnfläche und einer großzügigen Terrasse von ca. 28 m² auf einem 408 m² Grundstück. Das Objekt ist ab sofort bezugsfrei bzw. zum Ausbau bereit und überzeugt durch moderne, familiengerechte Architektur sowie zukunftsorientierte Energieeffizienz.

Das Haus verteilt seine 5 Zimmer auf zwei Etagen und bietet damit flexible Raumstrukturen für Familien mit individuellen Nutzungsanforderungen. Zusätzlich sorgt ein Gäste-WC für erhöhten Komfort. Der barrierefreie Zugang s unterstreichen die funktionale Alltagstauglichkeit.

Die Immobilie wird im KfW-40-Effizienzhausstandard errichtet, was einen äußerst niedrigen Energiebedarf sicherstellt und staatliche Fördermöglichkeiten sowie dauerhaft reduzierte Energiekosten ermöglicht (KfW-40 bedeutet, dass der Primärenergiebedarf höchstens 40 % eines Referenzgebäudes beträgt).

Besonderheit:
Das Haus wird als Ausbauhaus übergeben wie auf den Bilder zu sehen. Dadurch bietet sich die Möglichkeit, Ausstattung, Materialien und Design vollständig nach den eigenen Vorstellungen zu gestalten und individuelle Ausstattungsstandards umzusetzen.
Die Projektbilder dienen als Beispiel.

Der Energieausweis ist in Bearbeitung.

Fläche

ca. 146 m²

Wohnfläche

ca. 408 m²

Grundstücks­fläche

5

Zimmer

3

Anzahl Schlafzimmer

1

Anzahl Badezimmer

2

Etagenzahl insgesamt

Preis

Gesamtkosten

409.109 €


Kaufpreis

370.000 €

Grunderwerbsteuer

18.500 €
5,0 %

Maklerprovision (inkl. 19 % MwSt.)

13.209 €
3,57 % *

Notarkosten

5.550 €
1,5 %

Grundbucheintrag

1.850 €
0,5 %

* 3,57 % Käuferprovision inkl. 19 % MwSt.
Vertragsgrundlage unserer Leistung sind unsere Allgemeinen Geschäftsbedingungen.

Dies ist der aktuelle Angebotskaufpreis. Wir weisen darauf hin, dass dieser Angebotskaufpreis fallen oder bei erheblicher Nachfrage nach Objekten dieser Art auch steigen kann.

Ausstattung

Terrasse
Gäste-WC
Barrierefrei

Die Immobilie zeichnet sich durch eine gehobene Grundausstattung und eine energieeffiziente Bauweise aus:
- Energieeffizienzstandard: KfW-40-Effizienzhaus
- Wohnfläche: ca. 146 m² auf 2 Etagen
- Zimmer: 5 funktional aufgeteilte Räume
- Badezimmer: Hauptbad + Gäste-WC
- Terrasse: ca. 28 m²
- Barrierefreier Zugang: Stufenloser Eingang für hohen Wohnkomfort
- Heiz- und Energietechnik: Effiziente Lösungen für niedrige Betriebskosten (gemäß KfW-40 Standard)
- Carports: Möglichkeit für 2 Stellplätze
- Baujahr: 2026 (Neubau)
- Bezugsfrei: Ab ca. 01.06.2026

Weitere Immobilien

1.180.000 €
12 Zimmer | 297 m²
Bad Dürrheim
95.000 €
1 Zimmer | 25 m²
Dauchingen
820.000 €
5 Zimmer | 190 m²
Rietheim-Weilheim
670.000 €
8 Zimmer | 185 m²
Spaichingen
409.000 €
3,5 Zimmer | 90 m²
Singen / Hohentwiel

Sonstiges

Bitte beachten Sie, dass nur ein VOLLSTÄNDIG AUSGEFÜLLTES Kontaktformular von uns bearbeitet werden kann.

Herr Chris Ullrich
Dieselstraße 6, 71101 Schönaich
Tel.: +49 151 56921137
Email: c.ullrich@iad-immobilien.de
Aufsichtsbehörde nach § 34 c Gewerbeordnung
Industrie- und Handelskammer (IHK) Region Stuttgart Jägerstraße 30 70174 Stuttgart
Lizenzpartner der IAD Immobilien Agentur Deutschland GmbH

Lage

Die Immobilie befindet sich in 78183 Hüfingen – Ortsteil Behla im Bundesland Baden-Württemberg (Deutschland).

Hüfingen liegt im südlichen Schwarzwald-Baar-Kreis und zeichnet sich durch eine familienfreundliche Wohnlage mit guter Infrastruktur aus. Die Region bietet:
- Verkehrsanbindung: Schnelle Anbindung an die umliegenden Ballungsräume und Autobahnen, u.a. Verbindung zur Schweizer Grenze sowie zur Umgebung von Donaueschingen.
- Umgebung: Ruhige Wohnlage mit Naherholungsmöglichkeiten in naturnaher Umgebung (Wälder, Wander- und Freizeitwege).
- Infrastruktur: Grundversorgende Einrichtungen, Schulen, Kindergärten und Einkaufsmöglichkeiten sind in der Umgebung vorhanden.
- Pendelmöglichkeiten: Gute Erreichbarkeit der Grenzregion für Arbeitnehmer und Grenzgänger.

Karte

78183 Hüfingen

Möchten Sie ein Exposé anfordern? Nutzen Sie dazu unser praktisches Online-Formular.

Zinsvergleich

ING-DiBa AG
ING-DiBa AG

Monatliche Rate : 1.295,00 €

Summe : 259.000,00 €

Effektivzins

4,10 %

Zins : 4,00 %

Zinsbindung : 10 Jahr(e)

Restschuld nach Zinsbindungsende : 195.437,16 €

ING-DiBa AG
ING-DiBa AG

Monatliche Rate : 1.273,42 €

Summe : 259.000,00 €

Effektivzins

4,00 %

Zins : 3,90 %

Zinsbindung : 10 Jahr(e)

Restschuld nach Zinsbindungsende : 195.770,67 €

Hannoversche
Hannoversche

Monatliche Rate : 1.271,26 €

Summe : 259.000,00 €

Effektivzins

3,99 %

Zins : 3,89 %

Zinsbindung : 10 Jahr(e)

Restschuld nach Zinsbindungsende : 195.804,27 €

Consors Finanz BNP Paribas
Consors Finanz BNP Paribas

Monatliche Rate : 2.264,09 €

Summe : 259.000,00 €

Effektivzins

7,79 %

Zins : 7,49 %

Zinsbindung : 10 Jahr(e)

Restschuld nach Zinsbindungsende : 143.854,16 €

Volksbank Düsseldorf Neuss W
Volksbank Düsseldorf Neuss W

Monatliche Rate : 1.411,55 €

Summe : 259.000,00 €

Effektivzins

4,66 %

Zins : 4,54 %

Zinsbindung : 10 Jahr(e)

Restschuld nach Zinsbindungsende : 193.593,97 €

Eigenkapital 111.000 €; Tilgungsrate 1,00 %

Rechtliches

Die in diesem Exposé enthaltenen Informationen dürfen wir Sie bitten, vertraulich zu behandeln. Eine Weitergabe an Dritte ist unzulässig. Die Angaben in diesem Exposé beruhen auf den uns erteilten Informationen. Eine Haftung für die Richtigkeit bzw. Vollständigkeit können wir jedoch nicht übernehmen, dies gilt auch für die Beschaffenheit und Größe von Flächenangaben. Im Falle von eigenen Fehlern haften wir nur für Vorsatz und grobe Fahrlässigkeit. Im Übrigen gelten unsere allgemeinen Geschäftsbedingungen. Im Hinblick auf die Kompliziertheit der Steuergesetzgebung bitten wir Sie, die steuerlichen Auswirkungen Ihres Kaufes in jedem Falle durch Ihren steuerlichen Berater überprüfen zu lassen.

Rechtshinweis
Da wir Objektangaben nicht selbst ermitteln, übernehmen wir hierfür keine Gewähr. Dieses Exposé ist nur für Sie persönlich bestimmt. Eine Weitergabe an Dritte ist an unsere ausdrückliche Zustimmung gebunden und unterbindet nicht unseren Provisionsanspruch bei Zustandekommen eines Vertrages. Alle Gespräche sind über unser Büro zu führen. Bei Zuwiderhandlung behalten wir uns Schadenersatz bis zur Höhe der Provisionsansprüche ausdrücklich vor. Zwischenverkauf ist nicht ausgeschlossen.

Provision
Die Provision errechnet sich aus dem Kaufpreis. Für ein Exposé und weitere Informationen zum Objekt sowie einen Besichtigungstermin füllen Sie bitte die nachfolgenden Angaben im Kontaktformular aus:
- vollständiger Name/Anschrift,
- E-Mail-Adresse,
- Telefon/Mobilnummer.

Anmerkung
Alle Angaben stammen vom Eigentümer. Für die Richtigkeit übernehmen wir keine Haftung. Bitte bedenken Sie, dass auch die beste Beschreibung keinen Besichtigungstermin ersetzen kann. Wir stehen Ihnen gerne für Fragen zur Verfügung.

Sonstiges
Sehr geehrte Interessentin, sehr geehrter Interessent, sollten Sie eine Anfrage zu diesem Objekt an uns senden, beauftragen Sie uns für Sie tätig zu werden. Wir wollen Ihre Anfrage und Ihr Anliegen umgehend beantworten und wenn Sie wünschen auch kurzfristig einen Besichtigungstermin vereinbaren. Wir weisen darauf hin, dass gemäß Fernabsatzgesetz hiermit ein Vertragsverhältnis nachgewiesen werden kann, und dass bei Vertragsabschlüssen von Kaufverträgen die im Exposé ausgewiesene Courtage zu zahlen ist.

IAD Immobilien Agentur Deutschland GmbH


Copyright © expowand.de

IAD Immobilien Agentur Deutschland GmbH

Made with by expowand

Anfrage stellen