Kauf - Wohnung

Großzügige Altbauwohnung mit 6 Zimmern & Balkon – zentrumsnah / Hameln

                                 

31785 Hameln

238.000 €

Objekt-Nr: H-LS0112

Eckdaten

Kauf - Wohnung

Angebotsart

Etagenwohnung

Immobilientyp

31785 Hameln

Adresse

1903

Baujahr

2010

Letzte Modernisierung / Sanierung

520,00 €

Hausgeld

nach Absprache

Verfügbar ab

Gepflegt

Objektzustand

Normal

Qualität der Ausstattung

Beschreibung

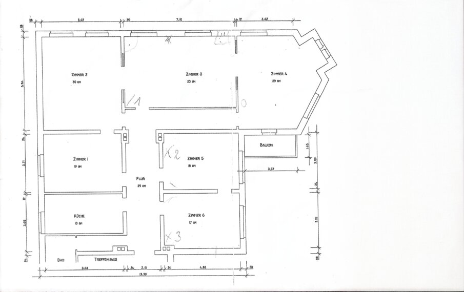
Diese charmante und zentral gelegene Obergeschosswohnung im 1. Stock besticht durch ihre beeindruckende Großzügigkeit und den besonderen Flair eines historischen Gebäudes aus dem frühen 20. Jahrhundert. Auf rund 195 m² Wohnfläche eröffnen sich zahlreiche Gestaltungsmöglichkeiten – ideal, um individuelle Wohnideen zu verwirklichen.

Die Wohnung umfasst insgesamt 6 geräumige Zimmer, einen Abstellraum, eine Küche, ein Badezimmer sowie einen Balkon. Ein eigener Kellerraum ergänzt das Angebot. Ein echtes Highlight bilden die drei größten Zimmer, die über stilvolle Flügeltüren miteinander verbunden sind: Bei geöffneten Türen entsteht ein weitläufiger Salon von ca. 88 m², der sich hervorragend für repräsentatives Wohnen, gesellige Anlässe oder ein großzügiges Raumkonzept eignet.

Sanierung & Modernisierung:

2000 umfassend saniert und seither kontinuierlich instand gehalten

2010 wurde das gesamte Gebäude grundlegend renoviert

Massive, zeittypische Bauweise entsprechend der Entstehungszeit

Fläche

ca. 195 m²

Wohnfläche

6

Zimmer

3

Anzahl Schlafzimmer

1

Anzahl Badezimmer

1. OG

Etage

3

Etagenzahl insgesamt

Preis

Gesamtkosten

263.156 €


Kaufpreis

238.000 €

Grunderwerbsteuer

11.900 €
5,0 %

Maklerprovision (inkl. 19 % MwSt.)

8.496 €
3,57 % *

Notarkosten

3.570 €
1,5 %

Grundbucheintrag

1.190 €
0,5 %

* 3,57 % Käuferprovision inkl. 19 % MwSt.
Vertragsgrundlage unserer Leistung sind unsere Allgemeinen Geschäftsbedingungen.

Dies ist der aktuelle Angebotskaufpreis. Wir weisen darauf hin, dass dieser Angebotskaufpreis fallen oder bei erheblicher Nachfrage nach Objekten dieser Art auch steigen kann.

Ausstattung

Balkon
Keller

Historischer Altbaucharme (Baujahr ca. 1903)

Großzügiger Grundriss mit hohen Decken

Stilvolle Flügeltüren und breite Räume für ein offenes, luftiges Wohngefühl

Parkett- und Laminatböden

Balkon mit ausreichend Platz zum Entspannen

Eigener Kellerraum als zusätzlicher Stauraum

Moderne Beheizung über Fernwärme

Energie

Energieausweis

Energieausweis liegt für das Gebäude vor

Energieausweis

25.03.2029

Gültig bis

Bedarfsausweis

Energieausweistyp

157,90 kWh/(m²*a)

Endenergiebedarf

E

Energieeffizienzklasse

Fernwärme

Wesentliche Energieträger

1903

Baujahr laut Energieausweis

Fernwärme

Heizungsart

Weitere Immobilien

313.500 €
10,5 Zimmer | 272 m²
Coppenbrügge
229.000 €
10 Zimmer | 175 m²
Hessisch Oldendorf
299.000 €
8 Zimmer | 204 m²
Rodenberg / Algesdorf
224.000 €
7 Zimmer | 170 m²
Dörentrup / Hillentrup
297.500 €
9 Zimmer | 276 m²
Eschershausen
95.000 €
400 m²
Porta Westfalica / Eisbergen

Sonstiges

Die Wohnung vereint den Charme klassischer Architektur mit modernem Wohnkomfort. Die großzügigen Räume eröffnen zahlreiche Nutzungsmöglichkeiten – ob Arbeitszimmer, Atelier, Musikzimmer oder ein weitläufiger Wohn- und Empfangsbereich. Hier ist Raum für individuelle Ideen und kreative Gestaltung.

Lage

Die Wohnung liegt sehr innenstadtnah in Hameln und verbindet Wohnen mit kurzen Wegen in die Altstadt und zu vielen Angeboten des täglichen Bedarfs. Die Umgebung ist geprägt von gewachsener Bebauung, einer guten Durchmischung aus Wohnen und Dienstleistungen sowie einer insgesamt sehr praktischen Nahversorgung. Der historische Stadtkern mit seinen Cafés, Restaurants, kulturellen Angeboten und Einkaufsmöglichkeiten ist schnell erreichbar – ideal, wenn man vieles gern zu Fuß oder mit dem Rad erledigt.

Einkaufen & Versorgung:

Ortskern/Innenstadt: ca. 0,5–0,8 km (etwa 7–12 Min. zu Fuß).

Supermarkt/Discounter-Dichte: ca. 1,5–2,0 km (5–8 Min. mit dem Rad / 20–30 Min. zu Fuß, je nach Route). Dort befinden sich u. a. ein REWE sowie weitere Läden im direkten Umfeld (z. B. Drogerie).

Drogerie (Rossmann) im gleichen Einkaufsbereich: ebenfalls im Umfeld Fischbecker Landstraße.

Ärzte, Apotheken & Gesundheit:
Hameln bietet eine sehr gute medizinische Infrastruktur, die sich stark rund um Innenstadt, Bahnhofsumfeld und das Klinikum bündelt.

Sana Klinikum Hameln-Pyrmont (Saint-Maur-Platz 1): ca. 1,0–1,7 km (ca. 4–7 Min. per Rad / 15–25 Min. zu Fuß). Das Klinikum liegt zentral und ist verkehrlich gut angebunden.

Hausärzte, Fachärzte & Apotheken: finden sich in hoher Dichte in der Innenstadt (kurze Wege, je nach Praxislage meist innerhalb von unter 1 km bis ca. 2 km).

ÖPNV & Mobilität:

Busanbindung: In der Nähe liegt eine Haltestelle ca. 0,1 km (1–3 Min. zu Fuß).

Bahnhof Hameln: in etwa 2,5 km erreichbar (je nach Route ca. 8–12 Min. per Rad oder 30–35 Min. zu Fuß).

Für Wege Richtung Klinikum sind mehrere Buslinien nutzbar.

Familie, Alltag & Freizeit:
Im direkten Umfeld und in der nahen Innenstadt finden sich Kitas, Schulen, Sport- und Freizeitangebote sowie zahlreiche Grün- und Spaziermöglichkeiten. Für städtische Einrichtungen (z. B. Spielplätze, Sporthallen, öffentliche Infrastruktur) bietet die Stadt Hameln zudem eine offizielle Übersichtskarte „Wo finde ich was?“.

In Summe ist die Lage besonders attraktiv für alle, die zentrale Erreichbarkeit schätzen: Innenstadtflair, gute medizinische Versorgung, schnelle Wege zu Einkaufsmöglichkeiten und eine solide ÖPNV-Anbindung – alles in einem Umfeld, das städtisch-praktisch ist, ohne auf Alltagsruhe verzichten zu müssen.

Karte

31785 Hameln

Möchten Sie ein Exposé anfordern? Nutzen Sie dazu unser praktisches Online-Formular.

Zinsvergleich

ING-DiBa AG
ING-DiBa AG

Monatliche Rate : 833,00 €

Summe : 166.600,00 €

Effektivzins

4,11 %

Zins : 4,00 %

Zinsbindung : 10 Jahr(e)

Restschuld nach Zinsbindungsende : 125.713,61 €

ING-DiBa AG
ING-DiBa AG

Monatliche Rate : 819,12 €

Summe : 166.600,00 €

Effektivzins

4,00 %

Zins : 3,90 %

Zinsbindung : 10 Jahr(e)

Restschuld nach Zinsbindungsende : 125.927,95 €

Deutsche Kreditbank AG
Deutsche Kreditbank AG

Monatliche Rate : 842,72 €

Summe : 166.600,00 €

Effektivzins

4,18 %

Zins : 4,07 %

Zinsbindung : 10 Jahr(e)

Restschuld nach Zinsbindungsende : 125.562,05 €

Deutsche Kreditbank AG
Deutsche Kreditbank AG

Monatliche Rate : 842,72 €

Summe : 166.600,00 €

Effektivzins

4,18 %

Zins : 4,07 %

Zinsbindung : 10 Jahr(e)

Restschuld nach Zinsbindungsende : 125.562,05 €

Consors Finanz BNP Paribas
Consors Finanz BNP Paribas

Monatliche Rate : 1.109,28 €

Summe : 166.600,00 €

Effektivzins

6,19 %

Zins : 5,99 %

Zinsbindung : 10 Jahr(e)

Restschuld nach Zinsbindungsende : 121.120,64 €

Eigenkapital 71.400 €; Tilgungsrate 1,00 %

Rechtliches

Die in diesem Exposé enthaltenen Informationen dürfen wir Sie bitten, vertraulich zu behandeln. Eine Weitergabe an Dritte ist unzulässig. Die Angaben in diesem Exposé beruhen auf den uns erteilten Informationen. Eine Haftung für die Richtigkeit bzw. Vollständigkeit können wir jedoch nicht übernehmen, dies gilt auch für die Beschaffenheit und Größe von Flächenangaben. Im Falle von eigenen Fehlern haften wir nur für Vorsatz und grobe Fahrlässigkeit. Im Übrigen gelten unsere allgemeinen Geschäftsbedingungen. Im Hinblick auf die Kompliziertheit der Steuergesetzgebung bitten wir Sie, die steuerlichen Auswirkungen Ihres Kaufes in jedem Falle durch Ihren steuerlichen Berater überprüfen zu lassen.

Rechtshinweis
Da wir Objektangaben nicht selbst ermitteln, übernehmen wir hierfür keine Gewähr. Dieses Exposé ist nur für Sie persönlich bestimmt. Eine Weitergabe an Dritte ist an unsere ausdrückliche Zustimmung gebunden und unterbindet nicht unseren Provisionsanspruch bei Zustandekommen eines Vertrages. Alle Gespräche sind über unser Büro zu führen. Bei Zuwiderhandlung behalten wir uns Schadenersatz bis zur Höhe der Provisionsansprüche ausdrücklich vor. Zwischenverkauf ist nicht ausgeschlossen.

Provision
Die Provision errechnet sich aus dem Kaufpreis. Für ein Exposé und weitere Informationen zum Objekt sowie einen Besichtigungstermin füllen Sie bitte die nachfolgenden Angaben im Kontaktformular aus:
- vollständiger Name/Anschrift,
- E-Mail-Adresse,
- Telefon/Mobilnummer.

Anmerkung
Alle Angaben stammen vom Eigentümer. Für die Richtigkeit übernehmen wir keine Haftung. Bitte bedenken Sie, dass auch die beste Beschreibung keinen Besichtigungstermin ersetzen kann. Wir stehen Ihnen gerne für Fragen zur Verfügung.

Sonstiges
Sehr geehrte Interessentin, sehr geehrter Interessent, sollten Sie eine Anfrage zu diesem Objekt an uns senden, beauftragen Sie uns für Sie tätig zu werden. Wir wollen Ihre Anfrage und Ihr Anliegen umgehend beantworten und wenn Sie wünschen auch kurzfristig einen Besichtigungstermin vereinbaren. Wir weisen darauf hin, dass gemäß Fernabsatzgesetz hiermit ein Vertragsverhältnis nachgewiesen werden kann, und dass bei Vertragsabschlüssen von Kaufverträgen die im Exposé ausgewiesene Courtage zu zahlen ist.

IAD Immobilien Agentur Deutschland GmbH


Copyright © expowand.de

IAD Immobilien Agentur Deutschland GmbH

Made with by expowand

Anfrage stellen