Kauf - Haus

Neuwertige Doppelhaushälfte in Oberndorf – Ihr Traumhaus wartet auf Sie!

                                 

86698 Oberndorf am Lech

565.000 €

Objekt-Nr: AIC-VV0739

Eckdaten

Kauf - Haus

Angebotsart

Doppelhaushälfte

Immobilientyp

86698 Oberndorf am Lech

Adresse

2025

Baujahr

Haus fertig gestellt

Bauphase

Nach Absprache

Verfügbar ab

Neuwertig

Objektzustand

Gehoben

Qualität der Ausstattung

Garagen/Stellplätze

Art: Außenstellplatz

Anzahl Stellplätze: 1

Beschreibung

Das Wohnhaus ist modern, funktional und lichtdurchflutet geplant. Große Fensterflächen, offene Wohnbereiche und ein vollwertig nutzbares Dachgeschoss sorgen für ein helles und freundliches Raumgefühl. Die Architektur zeigt klar gezeichnete Linien, eine ästhetische Fassadengliederung und hochwertige Fensterformate.

*Energieausweis in Bearbeitung, liegt bei Besichtigung vor.

Fläche

ca. 180 m²

Wohnfläche

ca. 228 m²

Grundstücks­fläche

5

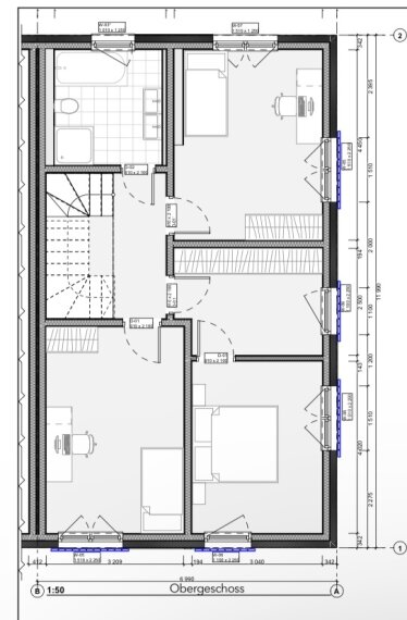
Zimmer

4

Anzahl Schlafzimmer

2

Anzahl Badezimmer

3

Etagenzahl insgesamt

Preis

Gesamtkosten

616.245 €


Kaufpreis

565.000 €

Grunderwerbsteuer

19.775 €
3,5 %

Maklerprovision (inkl. 19 % MwSt.)

20.170 €
3,57 % *

Notarkosten

8.475 €
1,5 %

Grundbucheintrag

2.825 €
0,5 %

* 3,57 % Käuferprovision inkl. 19 % MwSt.
Vertragsgrundlage unserer Leistung sind unsere Allgemeinen Geschäftsbedingungen.

Dies ist der aktuelle Angebotskaufpreis. Wir weisen darauf hin, dass dieser Angebotskaufpreis fallen oder bei erheblicher Nachfrage nach Objekten dieser Art auch steigen kann.

Ausstattung

Terrasse
Gäste-WC
Bodenbelag: Estrich

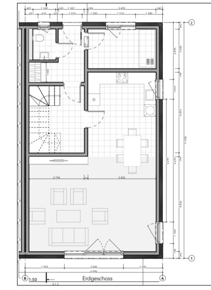
Der großzügige, offen gestaltete Grundriss umfasst:
• Einen sehr großen Wohnbereich mit breiter Fensterfront (Fensterpositionen u. a. W-04t 3000×2250 mm)
• Offenen Koch-/Essbereich
• Funktional angelegte Eingangszone mit Treppenhaus
• Praktische Nebenflächen
• Großzügige Raumwirkung durch klare Linien und helle Fassadenelemente

Der große raumbreite Fensterausschnitt schafft eine direkte Verbindung zum Garten und sorgt für maximale Lichtqualität.

Der großzügige, offen gestaltete Grundriss umfasst:
• Einen sehr großen Wohnbereich mit breiter Fensterfront (Fensterpositionen u. a. W-04t 3000×2250 mm)
• Offenen Koch-/Essbereich
• Funktional angelegte Eingangszone mit Treppenhaus
• Praktische Nebenflächen
• Großzügige Raumwirkung durch klare Linien und helle Fassadenelemente

Der große raumbreite Fensterausschnitt schafft eine direkte Verbindung zum Garten und sorgt für maximale Lichtqualität.

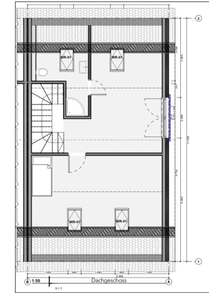
Dachgeschoss – DG

Ein wandelbarer Bereich, perfekt für:
• Büro
• Hobby
• Gästezimmer
• Rückzugsraum

Auffällige Merkmale:
• Vier Dachflächenfenster WR-01 (660×1400 mm), die viel Licht einbringen
• Flexible Raumaufteilung
• Großzügige Nutzfläche trotz Dachschräge

Weitere Immobilien

Sonstiges

Bitte beachten Sie, dass nur ein VOLLSTÄNDIG AUSGEFÜLLTES Kontaktformular von uns bearbeitet werden kann.

Frau Melek Voss
Abtstraße 6, 86653 Monheim Rehau
Tel.: +49 151 533 863 93
Email: m.voss@iad-immobilien.de
Aufsichtsbehörde nach § 34 c Gewerbeordnung
Landratsamt Aichach-Friedberg, Münchener Str. 9, 86551 Aichach
Lizenzpartner der IAD Immobilien Agentur Deutschland GmbH

Lage

Die Lage in Oberndorf am Lech bietet optimale Anbindung an B2 und B16 sowie kurze Wege zu Kindergarten, Schulen, Einkaufen und Ärzten. Die Bahnhöfe Mertingen und Assbach-Bäumenheim sind in wenigen Minuten erreichbar.

Karte

86698 Oberndorf am Lech

Möchten Sie ein Exposé anfordern? Nutzen Sie dazu unser praktisches Online-Formular.

Zinsvergleich

ING-DiBa AG
ING-DiBa AG

Monatliche Rate : 1.967,61 €

Summe : 395.500,00 €

Effektivzins

4,07 %

Zins : 3,97 %

Zinsbindung : 10 Jahr(e)

Restschuld nach Zinsbindungsende : 298.591,65 €

ING-DiBa AG
ING-DiBa AG

Monatliche Rate : 1.934,65 €

Summe : 395.500,00 €

Effektivzins

3,97 %

Zins : 3,87 %

Zinsbindung : 10 Jahr(e)

Restschuld nach Zinsbindungsende : 299.100,82 €

HypoVereinsbank
HypoVereinsbank

Monatliche Rate : 1.895,10 €

Summe : 395.500,00 €

Effektivzins

3,84 %

Zins : 3,75 %

Zinsbindung : 10 Jahr(e)

Restschuld nach Zinsbindungsende : 299.707,17 €

Allianz Lebensversicherung AG
Allianz Lebensversicherung AG

Monatliche Rate : 2.112,63 €

Summe : 395.500,00 €

Effektivzins

4,53 %

Zins : 4,41 %

Zinsbindung : 10 Jahr(e)

Restschuld nach Zinsbindungsende : 296.310,10 €

Gladbacher Bank AG
Gladbacher Bank AG

Monatliche Rate : 2.148,88 €

Summe : 395.500,00 €

Effektivzins

4,63 %

Zins : 4,52 %

Zinsbindung : 10 Jahr(e)

Restschuld nach Zinsbindungsende : 295.729,85 €

Eigenkapital 169.500 €; Tilgungsrate 1,00 %

Rechtliches

Die in diesem Exposé enthaltenen Informationen dürfen wir Sie bitten, vertraulich zu behandeln. Eine Weitergabe an Dritte ist unzulässig. Die Angaben in diesem Exposé beruhen auf den uns erteilten Informationen. Eine Haftung für die Richtigkeit bzw. Vollständigkeit können wir jedoch nicht übernehmen, dies gilt auch für die Beschaffenheit und Größe von Flächenangaben. Im Falle von eigenen Fehlern haften wir nur für Vorsatz und grobe Fahrlässigkeit. Im Übrigen gelten unsere allgemeinen Geschäftsbedingungen. Im Hinblick auf die Kompliziertheit der Steuergesetzgebung bitten wir Sie, die steuerlichen Auswirkungen Ihres Kaufes in jedem Falle durch Ihren steuerlichen Berater überprüfen zu lassen.

Rechtshinweis
Da wir Objektangaben nicht selbst ermitteln, übernehmen wir hierfür keine Gewähr. Dieses Exposé ist nur für Sie persönlich bestimmt. Eine Weitergabe an Dritte ist an unsere ausdrückliche Zustimmung gebunden und unterbindet nicht unseren Provisionsanspruch bei Zustandekommen eines Vertrages. Alle Gespräche sind über unser Büro zu führen. Bei Zuwiderhandlung behalten wir uns Schadenersatz bis zur Höhe der Provisionsansprüche ausdrücklich vor. Zwischenverkauf ist nicht ausgeschlossen.

Provision
Die Provision errechnet sich aus dem Kaufpreis. Für ein Exposé und weitere Informationen zum Objekt sowie einen Besichtigungstermin füllen Sie bitte die nachfolgenden Angaben im Kontaktformular aus:
- vollständiger Name/Anschrift,
- E-Mail-Adresse,
- Telefon/Mobilnummer.

Anmerkung
Alle Angaben stammen vom Eigentümer. Für die Richtigkeit übernehmen wir keine Haftung. Bitte bedenken Sie, dass auch die beste Beschreibung keinen Besichtigungstermin ersetzen kann. Wir stehen Ihnen gerne für Fragen zur Verfügung.

Sonstiges
Sehr geehrte Interessentin, sehr geehrter Interessent, sollten Sie eine Anfrage zu diesem Objekt an uns senden, beauftragen Sie uns für Sie tätig zu werden. Wir wollen Ihre Anfrage und Ihr Anliegen umgehend beantworten und wenn Sie wünschen auch kurzfristig einen Besichtigungstermin vereinbaren. Wir weisen darauf hin, dass gemäß Fernabsatzgesetz hiermit ein Vertragsverhältnis nachgewiesen werden kann, und dass bei Vertragsabschlüssen von Kaufverträgen die im Exposé ausgewiesene Courtage zu zahlen ist.

Lizenzpartnerin IAD GmbH


Copyright © expowand.de

Lizenzpartnerin IAD GmbH

Made with by expowand

Anfrage stellen