Kauf - Haus

Alleinstehendes Haus im Grünen - tolle Aussicht und Einliegerwohnung

                                 

51789 Lindlar

424.650 €

Objekt-Nr: BM-BP0083

Eckdaten

Kauf - Haus

Angebotsart

Einfamilienhaus

Immobilientyp

51789 Lindlar

Adresse

2010

Baujahr

Beschreibung

Dieses freistehende und variabel nutzbare Wohnhaus aus dem Jahr 2010 bietet einen atemberaubenden Ausblick. Hier wird die Familie sich wohlfühlen und im Homeoffice werden sie die naturnahe Atmosphäre spüren.

Die Kinder können sich auf den weitläufigen Wiesen austoben. Die unverbaubare Sicht machen diese Immobilie zu einem ganz besonderen Objekt, die auch innen durch ihre gehobene Ausstattung besticht.

Bei Bedarf haben zwei Generationen Platz. Je nachdem werden sich die Schwiegereltern oder die erwachsenden Kinder über eine separate Wohnmöglichkeit im Souterrain mit Badezimmer und eigenem Garten freuen können.

Denkbar ist auch die Nutzung als Freiberufler zum Beispiel als Atelier oder Praxis. Vereinbaren Sie eine Besichtigung und lassen Sie Ihrer Fantasie freien Lauf.

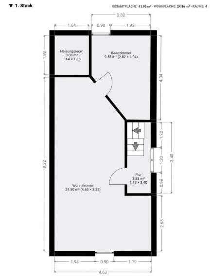
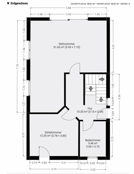
Im Erdgeschoss befindet sich die Hauptwohnung mit großer offener Küche. Das Bad ist ebenfalls großzügig und im Dachgeschoss kann bei Bedarf eine Aufteilung erfolgen.

*Energieausweis in Bearbeitung

Fläche

ca. 130 m²

Wohnfläche

ca. 968 m²

Grundstücks­fläche

ca. 80 m²

Nutzfläche

5

Zimmer

3

Anzahl Schlafzimmer

2

Anzahl Badezimmer

2

Etagenzahl insgesamt

Preis

Gesamtkosten

475.905 €


Kaufpreis

424.650 €

Grunderwerbsteuer

27.602 €
6,5 %

Maklerprovision (inkl. 19 % MwSt.)

15.160 €
3,57 % *

Notarkosten

6.370 €
1,5 %

Grundbucheintrag

2.123 €
0,5 %

* 3,57 % Käuferprovision inkl. 19 % MwSt.
Vertragsgrundlage unserer Leistung sind unsere Allgemeinen Geschäftsbedingungen.

Dies ist der aktuelle Angebotskaufpreis. Wir weisen darauf hin, dass dieser Angebotskaufpreis fallen oder bei erheblicher Nachfrage nach Objekten dieser Art auch steigen kann.

Ausstattung

Keller
Bodenbelag: Fliesen

- vollbiologische Sickergrube
- energiesparsame Brennwerttherme
- 160mm Mineralwolle Dachisolierung
- 2600 Liter Flüssiggastank
- Fußbodenheizung in allen Räumen
- zwei komfortable Badezimmer
- Dachgeschoss aufteilbar
- Vorbereitung für Kaminöfen in beiden Etagen
- Vorbereitung für Garage
- variable Einteilung möglich
- hochwertige Fliesen oder Parkett in den Etagen

Weitere Immobilien

770.000 €
21 Zimmer | 679 m²
Engelskirchen
139.000 €
8 Zimmer | 200 m²
Wiehl
174.000 €
580 m²
Marienheide / Müllenbach
360.000 €
6 Zimmer | 140 m²
Bergneustadt
680.000 €
1.267 m²
Remscheid / Remscheid-Bergisch-Born
295.000 €
2 Zimmer | 65 m²
Bergisch Gladbach
180.000 €
2 Zimmer | 54 m²
Bergisch Gladbach
362.000 €
3 Zimmer | 96 m²
Bergisch Gladbach
198.000 €
4 Zimmer | 115 m²
Remscheid
630.000 €
8 Zimmer | 185 m²
Bergisch Gladbach
215.000 €
4 Zimmer | 91 m²
Remscheid
176.500 €
4 Zimmer | 89 m²
Lüdenscheid
Auf Anfrage
25 Zimmer | 800 m²
Schalksmühle
120.000 €
2 Zimmer | 50 m²
Leverkusen
486.000 €
4 Zimmer | 98 m²
Köln - Köln Merheim

Sonstiges

Bitte beachten Sie, dass nur ein VOLLSTÄNDIG AUSGEFÜLLTES Kontaktformular von uns bearbeitet werden kann.

Herr Samuel Hartwich
Lizenzpartner der IAD Immobilien Agentur Deutschland GmbH
Auf dem Kiss 26, 58566 Kierspe
Tel.: +49 175 1443344
Email: s.hartwich@iad-immobilien.eu
Aufsichtsbehörde nach § 34 c Gewerbeordnung
Märkischer Kreis, Heedfelder Straße 45, 58509 Lüdensche

Lage

Lindlar liegt zwischen Gummersbach, Wipperfürth und Overath. In Lindlar wurde 2008 von Paläontologen Überreste von Blättern und Ästen des ältesten Waldes der Welt entdeckt. Vor etwa 390 Millionen Jahren, also noch vor den Dinosauriern, wuchsen dort etwa zwei bis drei Meter hohen Bäume.

Während der Völkerwanderung begann die Besiedlung von Lindlar und der Ort wurde erstmals 1109 urkundlich erwähnt. Der Name stammt ursprünglich wahrscheinlich von 'Lintlo' dem Lindengebüsch.

Aufgrund der ruhigen Lage bietet Lindlar unzählige Möglichkeiten zur Naherholung. Gerade deshalb zieht es viele aus dem städtischen Raum Köln/Bonn zum Wohnen in die Natur. Die gute Anbindung per A1 oder A4 garantiert eine gute Verbindung an die beiden Großstädte.

Karte

51789 Lindlar

Möchten Sie ein Exposé anfordern? Nutzen Sie dazu unser praktisches Online-Formular.

Zinsvergleich

ING-DiBa AG
ING-DiBa AG

Monatliche Rate : 1.493,93 €

Summe : 297.300,00 €

Effektivzins

4,14 %

Zins : 4,03 %

Zinsbindung : 10 Jahr(e)

Restschuld nach Zinsbindungsende : 224.222,54 €

ING-DiBa AG
ING-DiBa AG

Monatliche Rate : 1.469,16 €

Summe : 297.300,00 €

Effektivzins

4,03 %

Zins : 3,93 %

Zinsbindung : 10 Jahr(e)

Restschuld nach Zinsbindungsende : 224.605,99 €

DZ HYP AG
DZ HYP AG

Monatliche Rate : 1.530,86 €

Summe : 297.255,00 €

Effektivzins

4,28 %

Zins : 4,18 %

Zinsbindung : 10 Jahr(e)

Restschuld nach Zinsbindungsende : 223.607,63 €

Consors Finanz BNP Paribas
Consors Finanz BNP Paribas

Monatliche Rate : 2.103,08 €

Summe : 297.255,00 €

Effektivzins

6,72 %

Zins : 6,49 %

Zinsbindung : 10 Jahr(e)

Restschuld nach Zinsbindungsende : 213.869,32 €

Allianz Lebensversicherung AG
Allianz Lebensversicherung AG

Monatliche Rate : 1.587,84 €

Summe : 297.255,00 €

Effektivzins

4,53 %

Zins : 4,41 %

Zinsbindung : 10 Jahr(e)

Restschuld nach Zinsbindungsende : 222.704,23 €

Eigenkapital 127.395 €; Tilgungsrate 1,00 %

Rechtliches

Die in diesem Exposé enthaltenen Informationen dürfen wir Sie bitten, vertraulich zu behandeln. Eine Weitergabe an Dritte ist unzulässig. Die Angaben in diesem Exposé beruhen auf den uns erteilten Informationen. Eine Haftung für die Richtigkeit bzw. Vollständigkeit können wir jedoch nicht übernehmen, dies gilt auch für die Beschaffenheit und Größe von Flächenangaben. Im Falle von eigenen Fehlern haften wir nur für Vorsatz und grobe Fahrlässigkeit. Im Übrigen gelten unsere allgemeinen Geschäftsbedingungen. Im Hinblick auf die Kompliziertheit der Steuergesetzgebung bitten wir Sie, die steuerlichen Auswirkungen Ihres Kaufes in jedem Falle durch Ihren steuerlichen Berater überprüfen zu lassen.

Rechtshinweis
Da wir Objektangaben nicht selbst ermitteln, übernehmen wir hierfür keine Gewähr. Dieses Exposé ist nur für Sie persönlich bestimmt. Eine Weitergabe an Dritte ist an unsere ausdrückliche Zustimmung gebunden und unterbindet nicht unseren Provisionsanspruch bei Zustandekommen eines Vertrages. Alle Gespräche sind über unser Büro zu führen. Bei Zuwiderhandlung behalten wir uns Schadenersatz bis zur Höhe der Provisionsansprüche ausdrücklich vor. Zwischenverkauf ist nicht ausgeschlossen.

Provision
Die Provision errechnet sich aus dem Kaufpreis. Für ein Exposé und weitere Informationen zum Objekt sowie einen Besichtigungstermin füllen Sie bitte die nachfolgenden Angaben im Kontaktformular aus:
- vollständiger Name/Anschrift,
- E-Mail-Adresse,
- Telefon/Mobilnummer.

Anmerkung
Alle Angaben stammen vom Eigentümer. Für die Richtigkeit übernehmen wir keine Haftung. Bitte bedenken Sie, dass auch die beste Beschreibung keinen Besichtigungstermin ersetzen kann. Wir stehen Ihnen gerne für Fragen zur Verfügung.

Sonstiges
Sehr geehrte Interessentin, sehr geehrter Interessent, sollten Sie eine Anfrage zu diesem Objekt an uns senden, beauftragen Sie uns für Sie tätig zu werden. Wir wollen Ihre Anfrage und Ihr Anliegen umgehend beantworten und wenn Sie wünschen auch kurzfristig einen Besichtigungstermin vereinbaren. Wir weisen darauf hin, dass gemäß Fernabsatzgesetz hiermit ein Vertragsverhältnis nachgewiesen werden kann, und dass bei Vertragsabschlüssen von Kaufverträgen die im Exposé ausgewiesene Courtage zu zahlen ist.

IAD Immobilien Agentur Deutschland GmbH


Copyright © expowand.de

IAD Immobilien Agentur Deutschland GmbH

Made with by expowand

Anfrage stellen